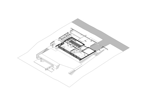
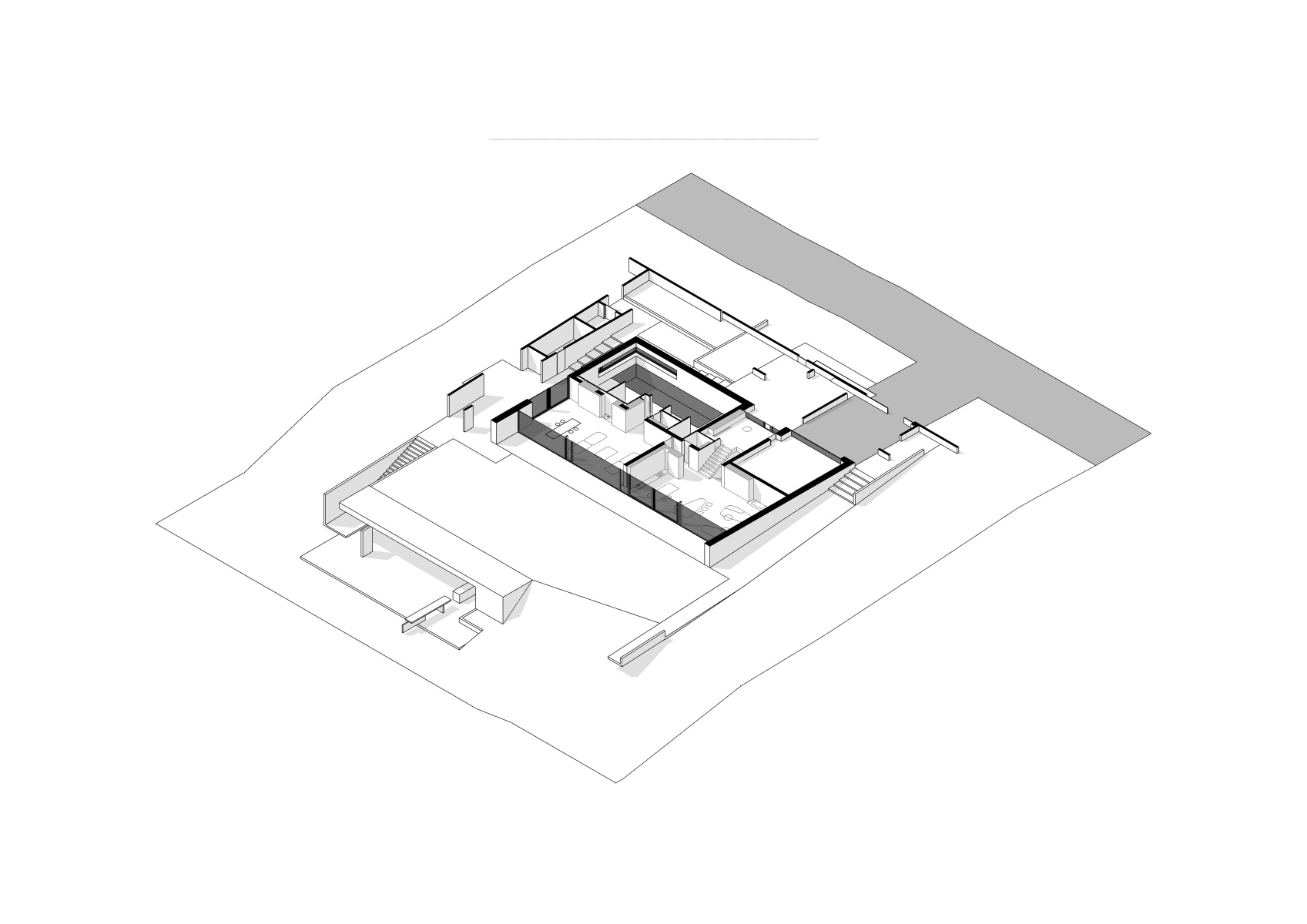
Нам достался очень живописный, просторный участок на возвышенности для проектирования индивидуального жилого дома.
Основной вид открывается на открытое пространство поймы реки с возвышенности пятна основной застройки. Для сглаживания разницы отметок дороги и участка мы решили разместить гараж и входную зону между первым и вторым этажом, соединив их лестницей.

Параллелепипед дома, отделанный вентфасадом с экраном из нержавеющей стали, окружён «холодными» конструкциями навесов въездной группы, летних террас и подпорных стен.
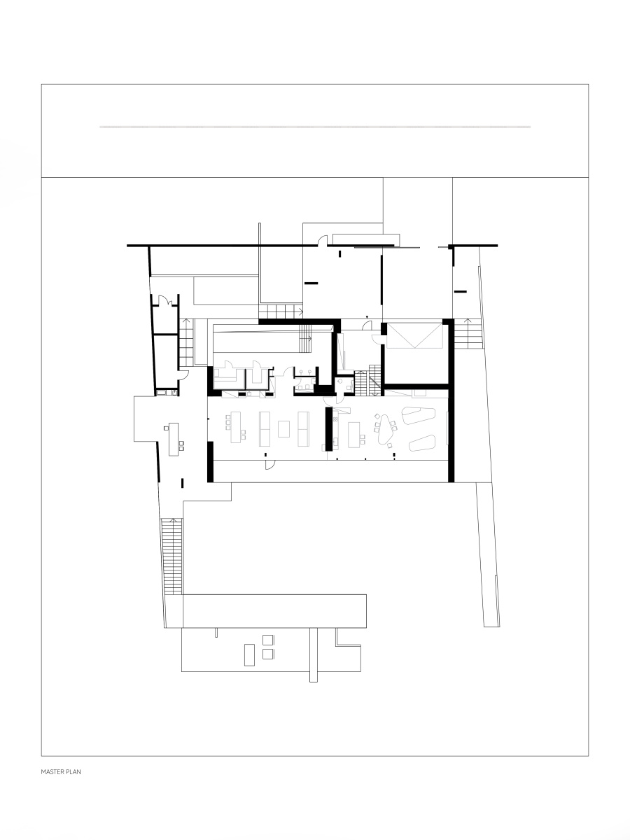
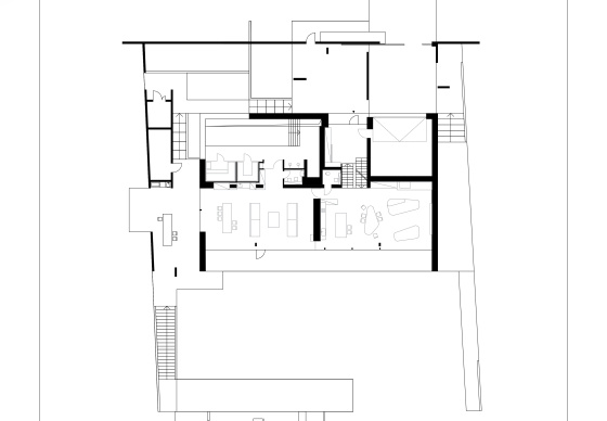
На первом этаже расположены помещения входной группы, блок СПА и главная гостиная зона.
Второй этаж занимают детские комнаты и хозяйские спальни.

Основная ценность проекта в том, что мы создали объект целостным, так как территория внутри границ землевладения фактически является экосистемой для человека, в которой он живёт, поэтому нельзя допускать пробелы или диссонансы.