Образ и планировку этого дома подсказало само место. В этом проекте удалось реализовать важный для нас принцип проектирования: взаимосвязь место / архитектура / интерьер.
Участок находится в деревне недалеко от Минска — с аккуратными деревенскими домами и ухоженными участками. Было желание найти новый вариант образа деревенского дома — традиционного, но современного.

Дорога к дому имеет плавный изгиб, и, подъезжая к нему, мы видим северо-западный фасад дома — классический силуэт с двускатной кровлей.
На закате он выглядит более выразительно — тени подчеркивают пластику фасада.

Главный фасад дома с террасой и входом выходит на запад.
С главной террасы и окон открывается вид на поле и лес. Панорамное окно гостиной — интерактивная картина с живописными закатами каждый вечер.

Большие террасы с двух сторон дома позволяют принимать гостей на свежем воздухе или просто выпить чашку кофе, слушая пение птиц. Это дом для отдыха душой и телом — для замедления и созерцания.

С учетом анализа грунта было принято решение делать мелкозаглубленный фундамент. Материал стен первого этажа — поризованные керамические блоки.
Стены второго этажа сделаны по каркасной технологии. Отделка фасада — планкеном, кровля — фальцевая. На террасах — доска из лиственницы.

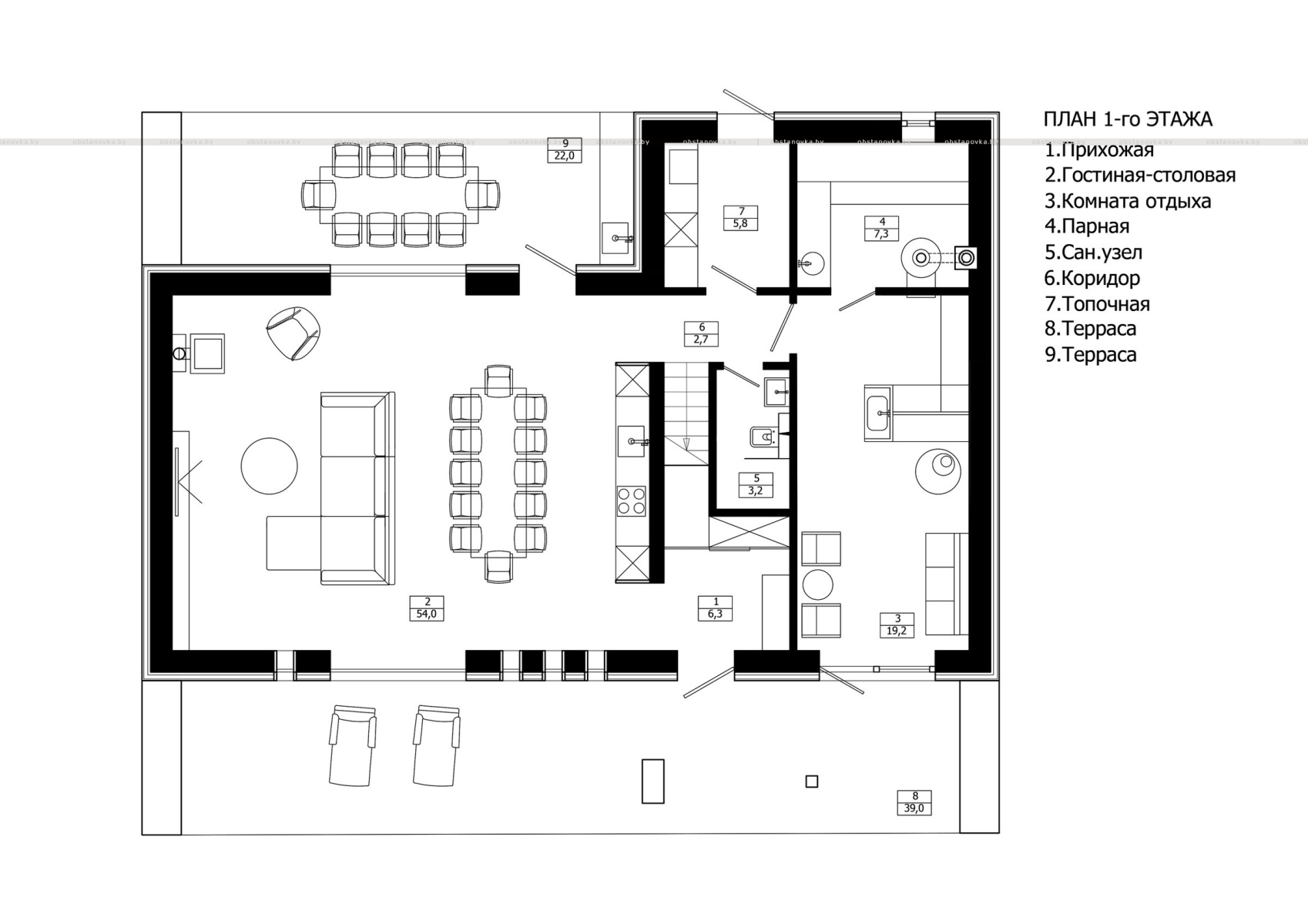
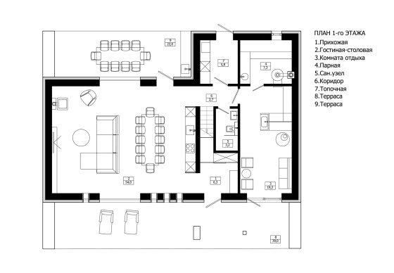
На первом этаже дома — гостиная со столовой и кухней. Трёхметровый стол позволяет разместиться большой компании родных и друзей. Диван — для просмотра фильмов, и печь-камин — для уютных вечеров. Также на первом этаже располагается баня с большой парной, душ, санузел, комната отдыха с панорамным окном и топочная с оборудованием.

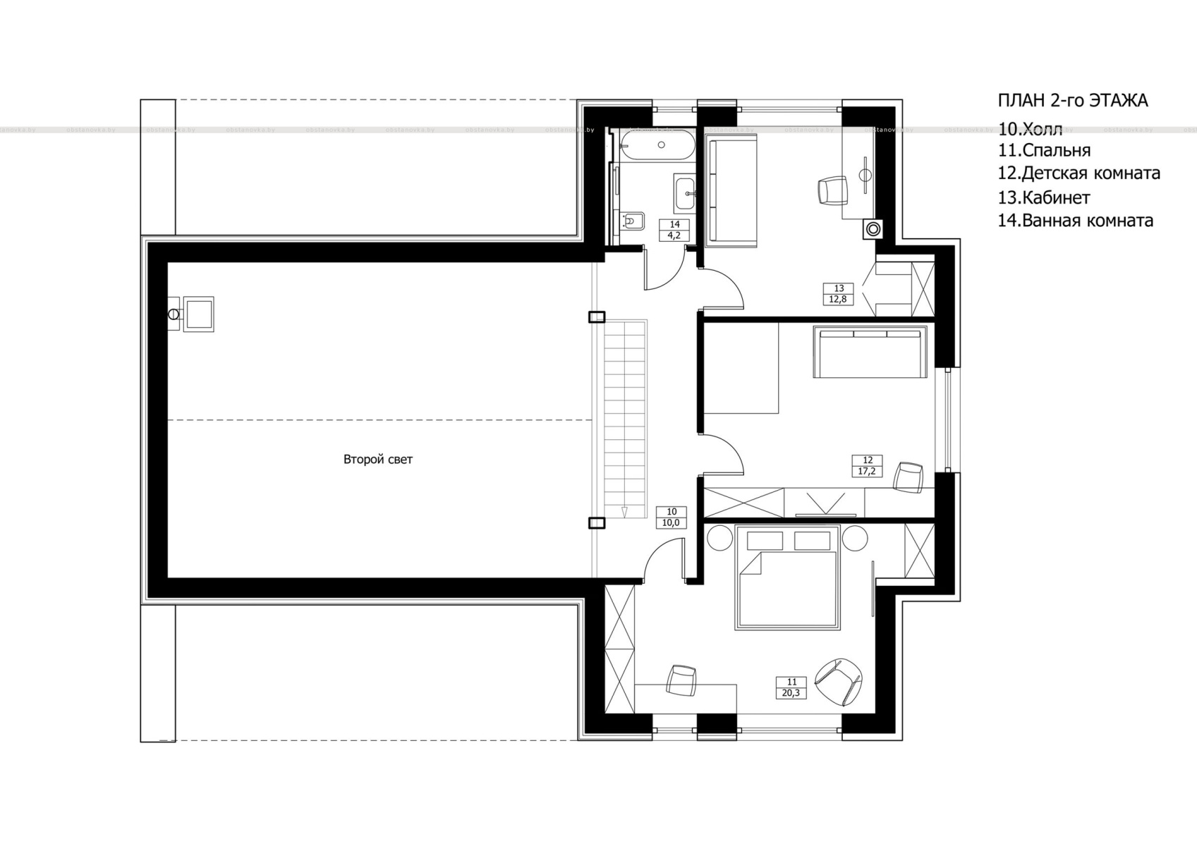
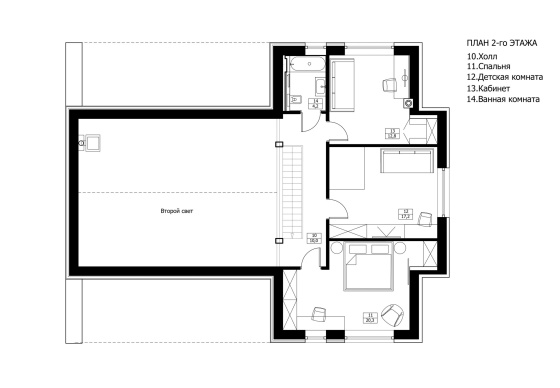
На втором этаже — три спальни и ванная комната. С открытой части второго этажа открывается вид на двусветное пространство гостиной.