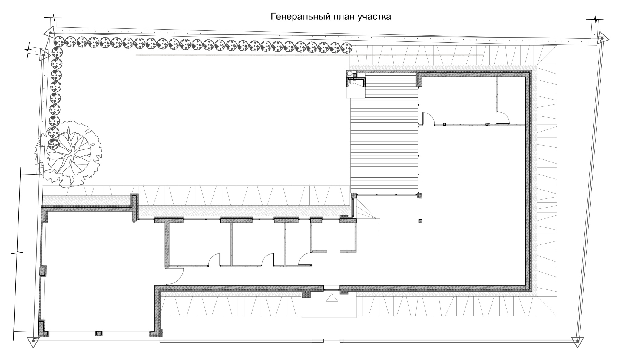
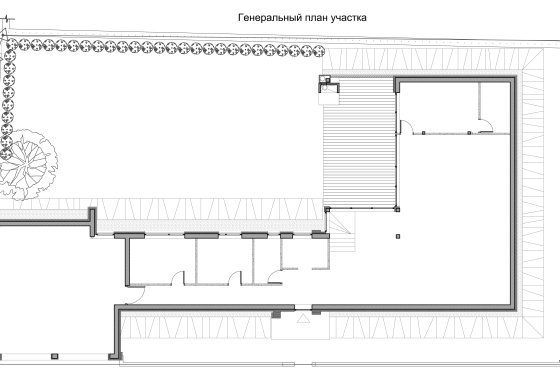
Дом расположен в г. Минске, в плотной усадебной застройке. Участок — 6 соток.
Это продиктовало концепцию «дома-забора», формирующего внутренний двор-патио и ограждающего от городской суеты и шума. Дом сблокирован гаражом с существующей застройкой 1990-х годов, известного минского архитектора А. Тумаса. Силуэты зданий контрастируют и вступают в градостроительный диалог.

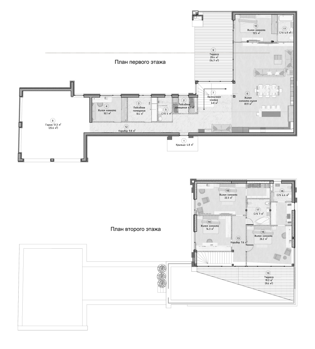
В одноэтажной части расположились гараж, кабинет, хозблок, постирочная и гостевой санузел. Двухэтажная часть — жилая.
Кухня, объединённая с гостиной, освещена ленточным остеклением по периметру и имеет выход в патио. На втором этаже расположены три спальни и санузел.
Кровля — плоская; для обслуживания предусмотрено отверстие в навесе, к которому с террасы второго этажа устанавливается приставная лестница для инспекции кровли, где расположены блоки кондиционеров и вентиляции.

Терраса второго этажа принадлежит главной спальне дома и выходит на зелёную липовую аллею. Отличительной чертой дома является его компактность и функциональность при очень стеснённой площади участка.
Угловое «градостроительное» расположение продиктовало акцентность в архитектуре и цветовом решении. Минималистичность архитектуры продиктована требованиями и вкусовыми предпочтениями семьи заказчика.