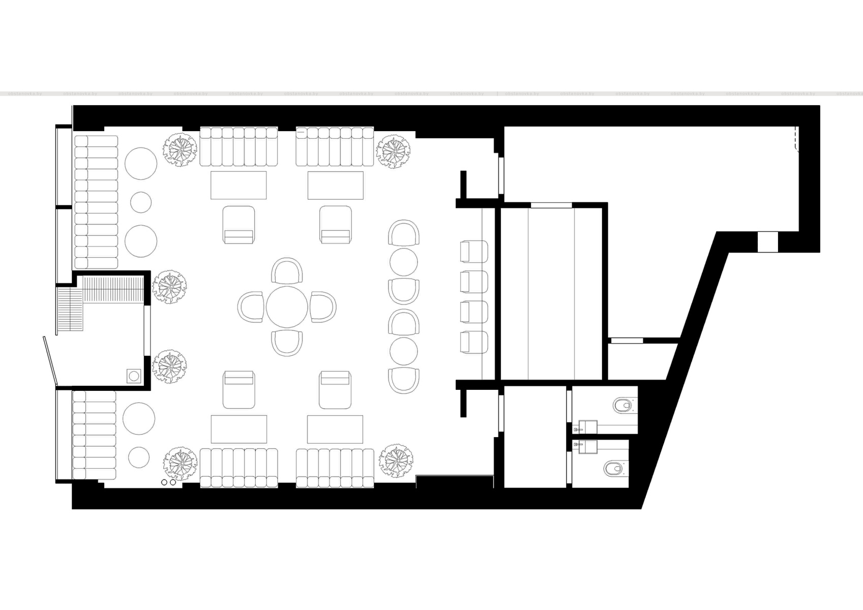
Мы создали интерьер лаундж-бара AVE в центре города площадью 108 м², намеренно переосмыслив философию классической кальянной и воплотив в пространстве новый, уникальный формат.
Нашей задачей было разработать проект, в котором архитектура и атмосфера объединяются для создания комфортного пространства, где собираются друзья и компании, чтобы провести время в непринуждённой и тёплой обстановке.

Керамогранит – плитка на пол Ragno
В основу дизайна легла идея итальянского дворика — тихого уголка в центре города, где уют и гостеприимство сочетаются с историей и архитектурной изысканностью. Песочные оттенки играют главную роль в цветовой палитре, наполняя помещение мягким, тёплым светом и создавая особую атмосферу и неподдельную гармонию.
Источником нашего вдохновения стал фильм Ридли Скотта «Гладиатор». Его эпическая атмосфера и образы помогли нам подчеркнуть характер пространства: здесь присутствуют отсылки к древности, аркам и архитектурным формам, а также — смысл тайны и ожидания.

Керамогранит – плитка на пол Ragno
На входе гости попадают в арку — своеобразный портал с эффектом впечатляющего прохождения. Заходя в помещение, ощущаешь себя гладиатором, входящим через массивные ворота арены, ещё не ведающим, что ждёт за пределами. Этот приём создаёт драматический, интригующий старт и пробуждает воображение.

Керамогранит – плитка на пол Ragno
Перед посетителем раскрывается просторный зал с выразительной архитектурной композицией. По бокам расположены фрагменты фасадов домов, словно части старинного итальянского квартала, искусно стилизованные с учётом современного восприятия.
Стены «связаны» светильниками, имитирующими металлические стяжки — небольшие детали, подчёркивающие историчность пространства.

Керамогранит – стена бара Marazzi. Керамогранит – барная стойка Marazzi. Керамогранит – плитка на пол Ragno
Центральное место занимает высокий архитектурный ансамбль бара, напоминающий старинный дворцовый фасад. Его фасад отлично вписывается в обстановку, задавая ритм залу и становясь естественным центром притяжения.
Над головой привлекает внимание крупный светильник — «луна», которая дарит мягкий рассеянный свет и создаёт ощущение уличного неба, словно гости действительно находятся под открытым небом в середине уютного итальянского двора.

Керамогранит – стена бара Marazzi. Керамогранит – барная стойка Marazzi. Керамогранит – плитка на пол Ragno
Особое внимание уделено композиционному построению стен: верхняя часть отделена от нижней и окрашена в глубокий антрацитовый цвет, что позволяет визуально сместить акцент и удерживать внимание посетителя именно на уровне глаз и чуть выше. Такое решение структурирует пространство и усиливает эффект погружения.

Керамогранит – плитка на пол Ragno
Проект AVE — это не просто кальянная, а современный лаундж, где архитектурные детали, цвет и свет создают атмосферу, вдохновлённую историей и кино, но при этом полностью соответствующую ритму городской жизни и ожиданиям взыскательной аудитории.
Здесь нашли отражение желание объединять людей, расширять границы привычного формата отдыха и подарить новый опыт, наполненный теплотой и стилем.