Нашей студией реализован проект кафе для международной логистической компании «APS». Компания занимается перевозкой грузов по территории Европы, Азии и Китая.
Это кафе для персонала — маленький тёплый островок в огромном офисном здании, где можно выпить чашку кофе и передохнуть от рабочей суеты. Получить свой дзен и вернуться с новыми силами к принятию важных решений.

Плитка Italon
Общий дизайн интерьера выполнен в современном стиле. В нём преобладают тёплые натуральные оттенки дерева и спокойные цвета, разбавленные зеленью. Свисающие растения придают природную свежесть и живость интерьеру.
Потолок украшен круглыми светильниками и зеркальными поверхностями, разбросанными по всему пространству, тем самым придавая ему лёгкости и динамичности.

Плитка Italon
Скрытая подсветка на потолке и за арками на стенах даёт возможность использовать разные сценарии освещения.
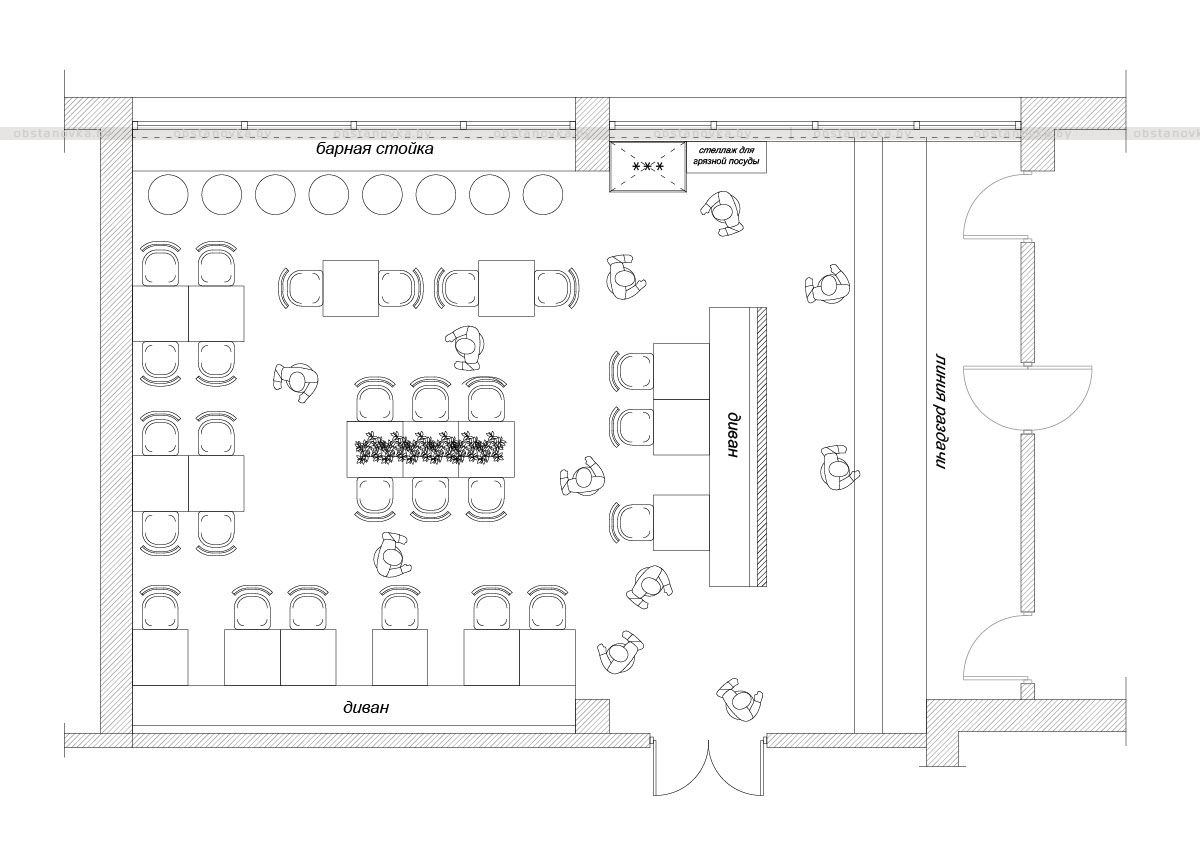
Прозрачная деревянная перегородка отделяет зону раздачи еды от зоны приёма пищи.
Вдоль окна расположена длинная барная стойка, предназначенная для тех, кто предпочитает побыть наедине со своими мыслями.