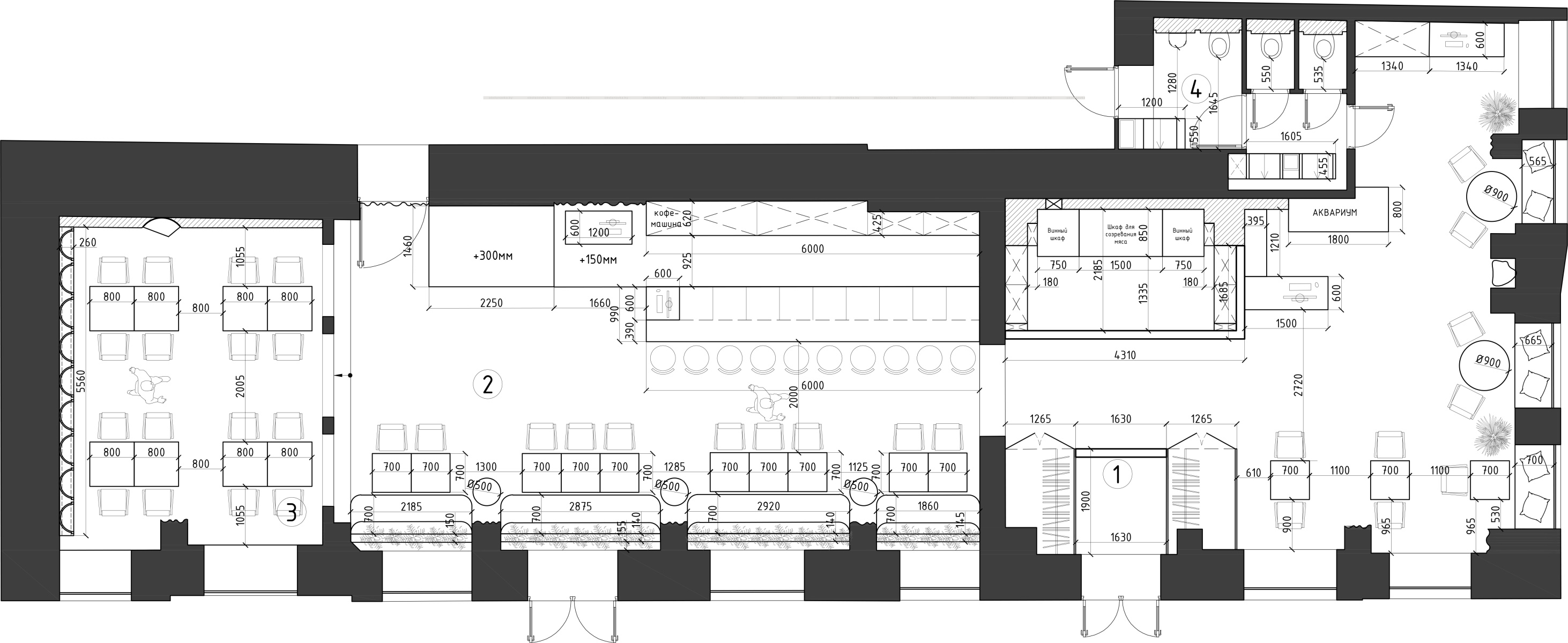
Ресторан разместился на одном уровне, на площади более 250 м².
На полу расположен активный красный мрамор, который и определил название и концепцию ресторана. Остальные поверхности интерьера — такие как стены, потолок и даже мебель — решены в монохромной нюдовой гамме с имитацией глиняных поверхностей. Такой контраст в отделке поверхностей был выбран не случайно — хотелось оставить внимание посетителей на красоте красного мрамора на полу.

Столы Sandalyeci. Стулья Sandalyeci
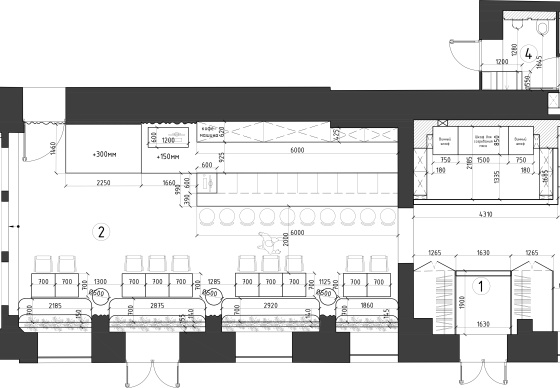
Пространство разделено на несколько залов. Практически со входа гостя встречает винная зона, в которой можно купить продукцию на вынос, и гардеробная, где можно оставить верхнюю одежду.
Также правый зал вместил в себя зону ресепшен, гостевые санузлы и несколько столиков для гостей с удобными местами для сидения в оконных проёмах. За ресепшеном расположился аквариум для устриц и морских гадов.

Стулья Sandalyeci. Декоративная штукатурка и декоративные элементы «Скалы» Алесь Барышевский
В левом зале, который имеет более вытянутую форму, расположилась барная зона, как будто бы возникшая из скалы. Перед ней находится барный остров из рельефного мрамора. Рядом с ней — импровизированная сцена для живых выступлений.

Столы Sandalyeci. Стулья Sandalyeci
Частью этого зала является так называемая VIP-зона, которая приподнята относительно общего уровня пола и отделена природными колоннами. Необычная инсталляция, собранная из полусотни светильников, возвышается над столиками в этой зоне. Детали стеллажа созданы на 3D-принтере, за ними расположена подсветка, создающая романтическое свечение в вечернее время.