На участке два дома. Этот дом считается гостевым, с банным комплексом и тренажёрным залом.
Сам заказчик увлекается беговыми лыжами и любит силовые упражнения, почти все тренажёры в зале были изготовлены под заказ. Пожелание заказчика — оставить максимально открытое пространство, чтобы были видны фермы и больше света в доме. Любят неяркие цвета и сидеть у камина. В планировке дома заказчика большая площадь отдана под его увлечения — это баня, предбанник, раздевалка и тренажёрный зал.

Поэтому было принято решение возводить стенки не до потолка, а отделяя зоны. Между спальным блоком появилась стеклянная перегородка до потолка. Основная зона от прихожей зонирована кухней (перегородкой из шпона).
Самый необычный элемент этого интерьера для меня — это продолжение стены из стекла в общей зоне, которая позволяет увидеть фермы в перспективе. Стенку изготавливали из трёх стеклянных элементов.

Мне очень нравится входная зона — светлая, просторная, и я довольна тем, как гармонично и функционально выглядит пространство в целом. Старалась не перегружать интерьер элементами декора, так как прекрасный вид из окон не должен перебивать интерьер. Люблю выделять разные зоны светом, максимально продумываю вечернее зонирование и при этом создаю мягкий свет.
Мои авторские приёмы — это декоративная плитка на стене. Мы использовали этот приём возле камина и в прихожей. Также люблю использовать цветную плитку «кабанчик» в ванных комнатах. Оформление деревянным панно стенки в тренажёрном зале и банной зоне — тоже моё любимое решение. Задача — создать домашний уют в этих нежилых помещениях.

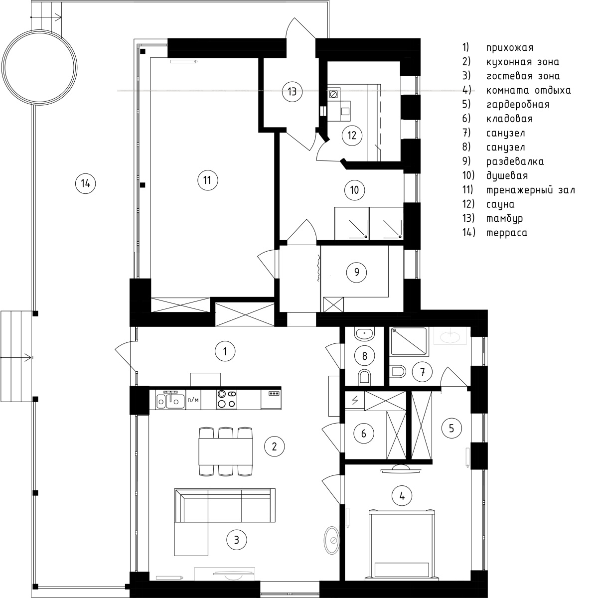
Прихожая
В прихожей мне очень нравится большое зеркало. Учитывая, что заказчик поставил входную дверь с оконными рамами, этот светлый холл отражает свет в зеркале и становится ещё светлее и просторнее. Очень люблю вид из дома на эту входную группу.

Кухня
Стенка, делящая основное пространство зоны с прихожей, — это цельная конструкция, которая проектировалась вместе с кухней. Металлический каркас устанавливали до укладки плитки, а после зашивали шпоном со стороны прихожей. Таким образом, кухня стала декоративным приёмом разделения зон.

Также сама кухня обрамлена шпоном со всех сторон и находится как бы в коробочке.
Гостиная
Считаю, что в этой зоне основной акцент — это камин и оформление каминной зоны. Рада, что рядом с камином есть окно — это не тёмный угол, а светлая зона. Нравится стенка из плитки, которая делит длинную стену на зоны. Окна Velux в крыше дают много естественного света — их врезали уже по ходу ремонта, когда заказчик решил добавить света в гостиную.

Спальня
Здесь есть стенка, которая делит спальню от хозкомнаты. Так как мы решили, что фермы должны читаться и быть видны с любого угла дома, над хозпомещением образовалось пространство, которое заказчики решили оставить как антресоль, и появился декоративный элемент — лестница наверх.

Шкаф спрятали за шпоновыми панелями со стороны кровати, получился цельный элемент. Фасады шкафа сделали из ротанга — очень нравится сочетание дикого леса за окном и ротанга. Также врезали окно в крыше уже после утверждения дизайна — комната стала ещё светлее.
Ванная
Плитка-мозаика в душевой цвета голубой сосны, а на стенах — плиты Laminam. Светлое окно в дикий лес даёт полное ощущение соединения с природой по цветовым и текстурным решениям. Ниша для банок в душе рассчитывалась под высоту плитки и шампуней.

Тренажерный зал
Тренажёры изготавливались под заказ — всё, что любит заказчик. Пол мы оставили таким же, как в гостиной, чтобы помещение не выглядело как общественный тренажёрный зал (хотя изначально заказчик хотел положить профессиональное покрытие).

Добавили деревянные панели на стены, чтобы создать ещё более уютный интерьер. Подсветка на панелях в виде бра создаёт красивую игру теней. Архитектор заложил большое остекление, и так как это солнечная сторона, мы изготовили деревянные жалюзи — они добавили мягкости и уюта этому помещению.
Зона переодевания перед домом
Чтобы объединить два помещения (так как из тренажёрного зала мы попадаем в дом через общую зону, где виднеется зона переодевания), мы решили зашить стены деревянными панелями и изготовили шкаф и скамейки из шпона такого же цвета.

Проход из раздевалки решили оградить шторой, чтобы не делить пространство на маленькую комнатку, а оставить общий объём.
Душевая при бане
Заказчик пожелал две душевые — мужскую и женскую. Мы добавили нишу для хранения после бани и сделали подсветку как приём мягкого света для расслабления.

Так как в бане в основном приглушённый свет, важно было избежать резкого контраста освещения. Поэтому в зоне душа появилась мягкая подсветка, а на другой стене добавили бра для уютного света.