В проекте ставилась на первый план экологичность, и поэтому были выбраны только натуральные материалы.
В качестве напольного покрытия был использован натуральный паркет, мягкий и приятный на ощупь. В декоре стеновых панелей использовался шпон дуба, который выглядит очень элегантно и привлекательно.

Текстура дерева, тонированного под орех, создала спокойную и приятную атмосферу в доме, что особенно важно для гостевого дома. Уют и комфорт усиливает мягкая подсветка, которая дает приятное и расслабляющее освещение в каждой комнате.
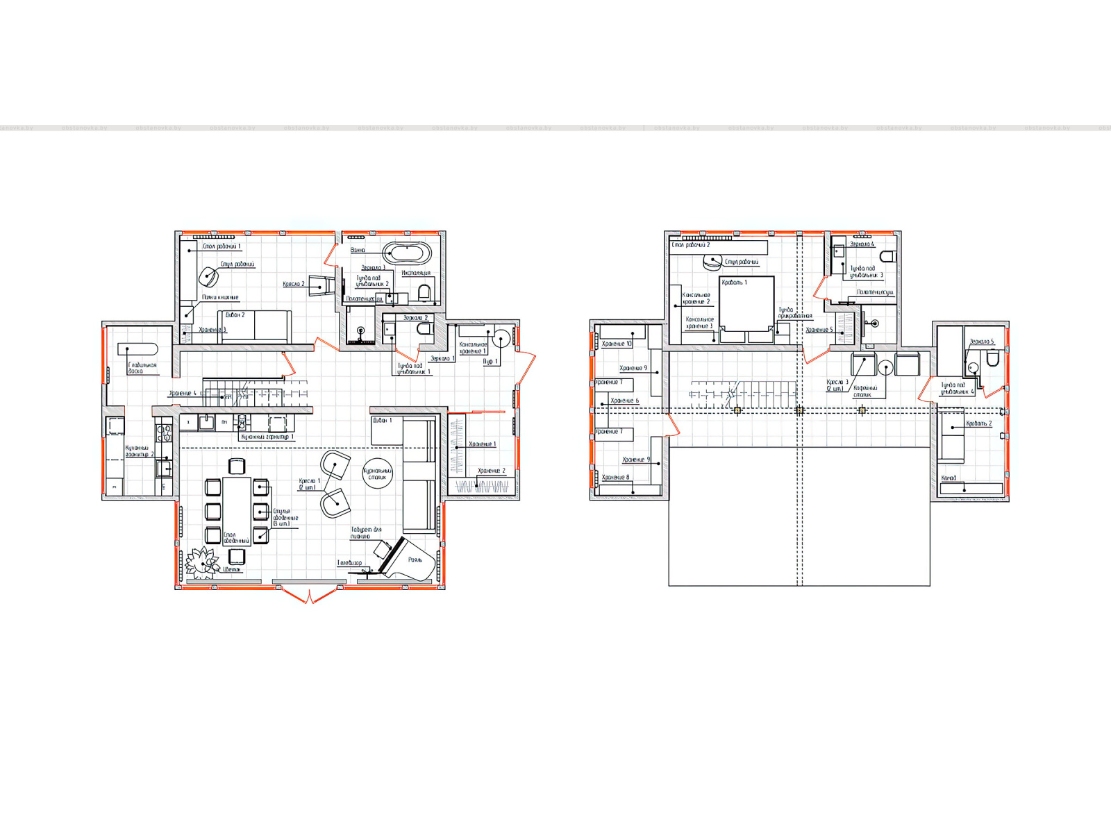
Первая комната, в которую вы входите, это прихожая с зеркалом и гардеробной комнатой. Затем, вы переходите в уютный коридор, который направляет к дальней части дома.

Прихожая. Паркет Coswick. Освещение Maytoni
Справа от лестницы находится проход в зону персонала с удобной кухней по двум стенам. Большое двусветное пространство гостиной является главной особенностью этого дома.
В этой же зоне расположена небольшая доготовочная кухня для фуршетов, что делает это место идеальным для приятных вечеров в кругу друзей.

Кабинет находится неподалеку от гостиной, и здесь вы можете найти уютный диван мягких очертаний, который может трансформироваться в спальное место, а также темную стильную рабочую зону в шпонированных дубовых панелях.
На первом этаже также находится ванная комната доступная из кабинета с отдельностоящей ваной, комфортной душевой и фоновыми стенами.

Чтобы перейти на второй уровень, вы должны взойти по лестнице со стеклянным ограждением и подсветкой ступеней. Здесь расположилась зона отдыха, где вы можете насладиться красивым видом за окном.

На втором этаже расположилась спальня с большой мягкой серой кроватью минималистичного дизайна.
Прикроватные тумбы вдоль стен и большое витражное остекление с рабочим столом рядом создают комфортную и функциональную атмосферу.