Этот дом был построен десять лет назад, и всё это время оставался без оформления, лишь стены внутри были покрыты серым маслом.
Заказчик до этого пробовал работать с несколькими дизайнерами, но долго не мог определиться с эстетикой: после увлечения хай-теком и глянцем нулевых ему хотелось чего-то более спокойного и цельного. Решение появилось после того, как он увидел мою квартиру — именно там его вдохновила атмосфера цельности и сдержанности.

Хозяева — семейная пара около 55 лет, к которым часто приезжают взрослые дети с семьями. Для них важно проводить время вместе: готовить, ужинать за большим столом, слушать музыку, смотреть фильмы.
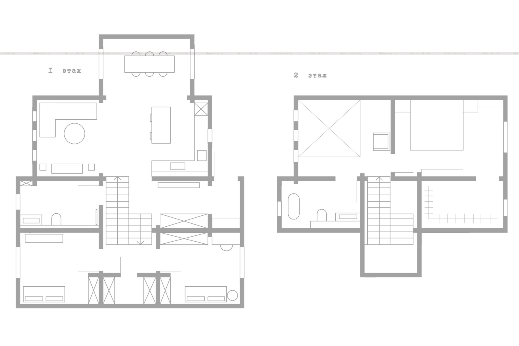
Поэтому главная зона дома объединяет кухню, столовую и гостиную. Мы спроектировали просторную кухню Valcucine с островом, увеличенной варочной панелью и без верхних шкафов, чтобы сохранить ощущение воздуха.

Основой проекта стало настроение дома в момент, когда я впервые его увидел: серые деревянные стены, приглушённый свет, густой лес за окнами. Это ощущение лёгкой дымки и спокойствия мы решили сохранить.
Интерьер построен на матовых натуральных материалах — известняк, дуб, лён, металл. Все формы простые и строгие, без декоративности.

Спальня. Бра Occhio
Особое значение имеет дубовый пол. Для него мы выбрали широкие ламели Ebony and Co, некоторые достигают 50 см.
Их редкий цвет — натуральный, словно необработанный дуб, без привычных посторонних оттенков, а сучки и неровности не замазаны, а оставлены живыми. Этот пол стал важной частью общей концепции естественной простоты и брутальности.

Столовая зона. Светильник Flos
Сложной задачей стало изготовление уникальных предметов: шкаф из чёрного металла при входе, библиотека из матовой нержавейки, стойка под аудиосистему из бетона и металла, которую я спроектировал специально для этого проекта. Все эти элементы делались на заказ местными мастерами и потребовали сложной, по-настоящему уникальной работы.
Также был изготовлен большой дубовый стол из массива — простая форма, вдохновлённая старыми европейскими деревенскими столами.

Кабинет. Библиотека из нержавейки изготовлена по чертежам автора проекта
Важную роль играет искусство и отдельные дизайнерские вещи. Мы отказались от ярких акцентов в пользу спокойных работ, которые органично вписываются в палитру.
Так появились картина Ильи Овсянникова «Начало игры», моя вариация стула Zig-Zag из металла, скульптуры Максима Макаревича в санузлах. Всё искусство подбирал я лично.

Санузел. Умывальник Cielo. ЗеркалоCielo. Скульптура - белорусский скульптор Максим Макаревич
Главная ценность проекта — в его цельности. Особенно непросто было достичь этого в деревянном доме из бруса. Интерьер работает как единое пространство с особой атмосферой — приглушённой, немного туманной, брутальной и спокойной. И хотя здесь есть множество культовых предметов и икон дизайна, они не стремятся произвести вау-эффект, а органично растворяются в пространстве.