Этот дом наша студия спроектировала и построила от котлована. И вот сейчас завершилась реализация дизайна внутри.
Взрослый, интеллигентный, осмысленный интерьер с тихой, непоказной роскошью. Здесь абсолютно эргономичное пространство: шикарная высота потолков, окна — там, где должны быть.

Заказчики хотели что-то классическое. Но мы не придерживались тотальной классики. В интерьере — явное смешение стилей и неочевидные предметы, не свойственные классике.
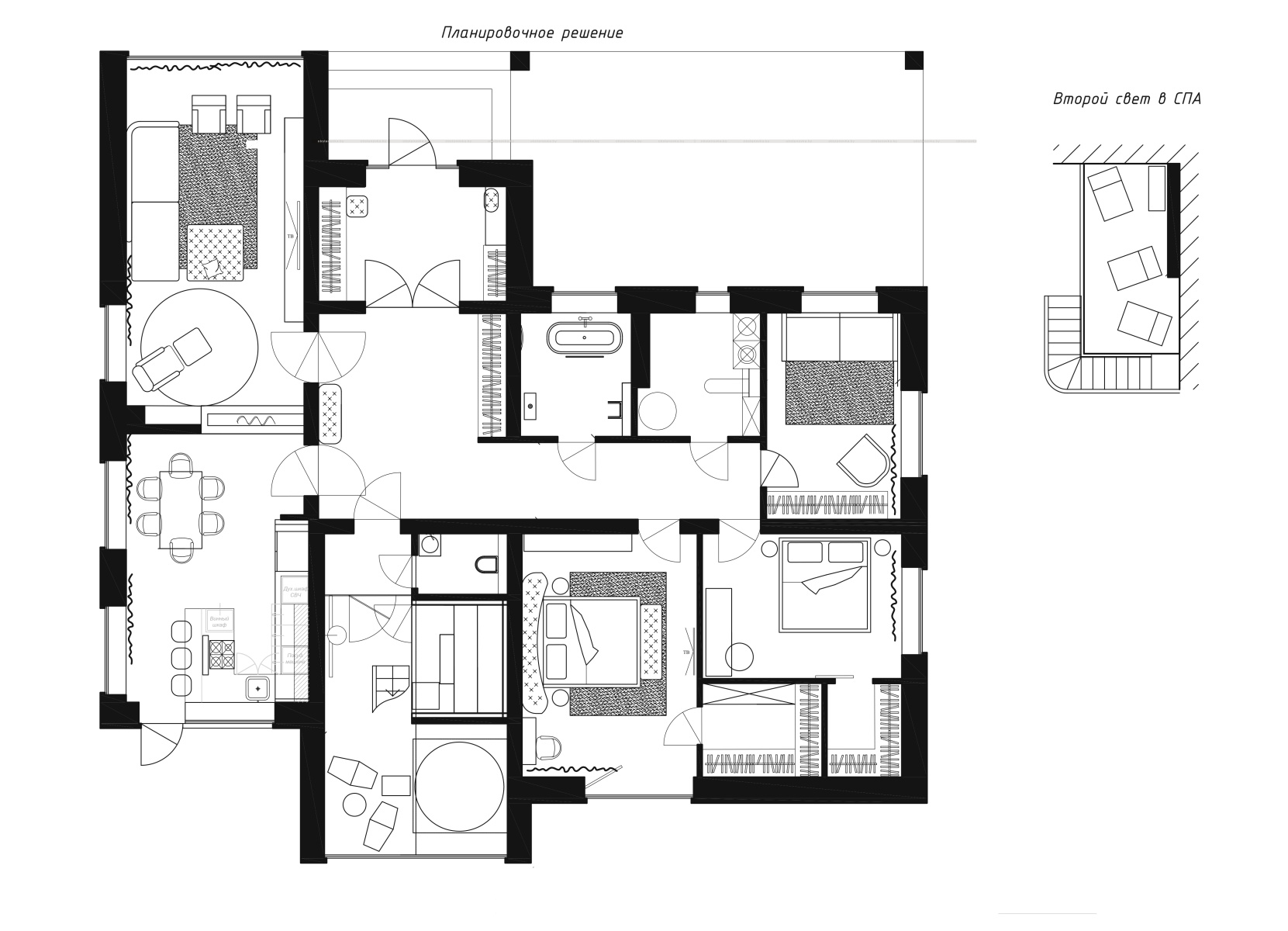
Принципиальной позицией заказчиков было разделение кухни и гостиной. Мы прислушались, но всё же слегка визуально эти помещения связали. Между комнатами расположился двухметровый биокамин, закрытый стеклом с двух сторон, так что на просвет, через пламя, мы всё же чувствуем, что пространство нас объединяет.

В кухне-столовой камин в зоне обеденного стола собирает семью за ужином, у домашнего очага. В гостиной — располагает к расслаблению в удобном кресле с книгой в руках.
Жемчужина дома — это зона СПА. Здесь есть сауна, зона джакузи, над которой нависает большая и очень эффектная люстра. Мы не предлагали выделить всё это в отдельное строение, а просто организовали специальную зону в доме со вторым светом. И, так как наша студия проектировала этот дом, всё это грамотно отразили в архитектуре.

В хозяйской спальне использовали для облицовки очень необычный шпон. Здесь его применили впервые и до конца не знали, как получится.
Но когда материал приехал в объёме, покрытый глянцевым лаком, в контексте комнаты — в него все моментально влюбились. Корпусная зона возле кровати вся выполнена в шпоне.

Гостевая спальная комната просто невероятная по цветовому сочетанию. Тут сочетаются бирюзовый и ярко-травянистый зелёный. Это помещение яркое, но не кричащее.
В нём очень комфортно находиться.

Мы не делали дизайн очень взрослым, но, так как заказчики уже состоявшиеся люди, дополнили интерьер взрослыми деталями. Выбрали стаканы с хрустальной нарезкой, повесили искусство с классическими цветочными мотивами, а также подбирали декоративную посуду из натурального мрамора и в оттенках золота, которая идеально сочетается со всей обстановкой.

Кстати, в этом интерьере с отсылкой к классике практически не использовали золота, хотя хозяйка его очень любит. Мы добавили его супердозированно: оно обнаруживается в столовой зоне, в люстре и в таких деталях, типа столовых приборов и посуды. И золото — такое культурное, даже более близкое к бронзе.