Пожеланиями заказчиков было произвести перепланировку согласно новой функции дома, сделать его уютным, спокойным, в нейтральных оттенках.
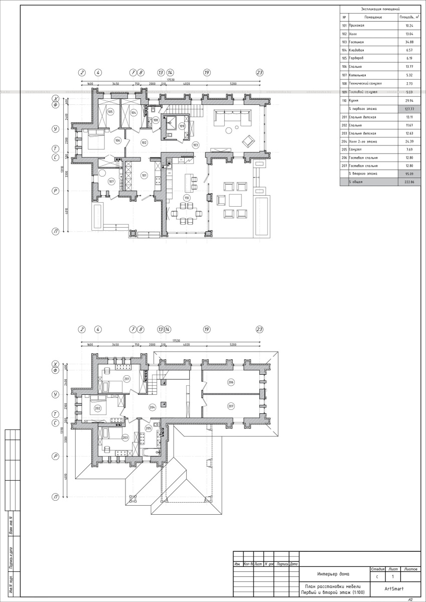
Наша работа над проектом началась на уровне строительства, где мы внесли необходимые корректировки в планировочное решение — изменили назначения помещений, добавили спальные комнаты.

Так как дом находится в окружении соснового леса, было принято решение ввести все природные оттенки и текстуры в дом, тем самым объединяя пространства и стирая границы.
Натуральный ротанг, шпон дерева, текстура плитки, декоративная штукатурка, умывальник, сделанный из натурального камня, фасады шкафов с эффектом «рэйн» или теней от растений — всё это создаёт ощущение присутствия природы и вводит скрытый ритм в интерьер. Искусство в гостиной также подчеркивает природность и было специально написано под этот проект.

Хозяева дома — активные, деловые люди, и в то же время за городом им хочется расслабиться и полностью погрузиться в семейную атмосферу уюта.
Выбранный современный стиль в сочетании с природными цветовыми оттенками как раз и помогает им в этом.

Кухня объединила в себе сразу три зоны: основную зону хранения и готовки, дополнительную зону острова (в том числе как место для быстрого перекуса) и, конечно, зону столовой — место, где семья собирается вместе каждый день.

В данном помещении — оригинальная архитектура потолков, которые мы объединили цветовым решением со стенами. Это позволило расширить пространство и растворить переходы плоскостей.
Также мы продумали сценарии освещения, чтобы при разных поводах и задачах хозяевам всегда было удобно и атмосферно.

Особенностью данного проекта было то, что заказчики пожелали иметь отдельные мужскую и женскую спальни, которые также отличаются и по настроению — лилово-мягкому у хозяйки и более серьёзному у хозяина.
В детских мы продолжаем основную историю дома, однако тут уже появляются и более игривые детали и оттенки: оранжевый у мальчика и розовый у девочки.

Спальня девочки — это сказочный мир для фантазий и творчества, спальня мальчика — пространство для изобретений и открытий.
Интерьер обволакивает своим настроением релакса и спокойствия, помогает восстановить силы и зарядиться энергией природы.