Заказчики: молодая семья с двумя детьми.
Локация: загородный дом.
Задача: создать функциональное, простое и вневременное пространство для отдыха и восстановления.
Когда за городом ищешь не просто крышу над головой, а тишину и возможность дышать полной грудью, интерьер должен стать естественным продолжением природы. Именно этот принцип лег в основу проекта загородной дачи для молодой пары с детьми. Их запрос был предельно честным: пространство должно быть «некричащим», практичным и оставаться актуальным долгие годы, даря ощущение настоящей загородной жизни.

Кухня-гостиная. Свет Arlight. Краска на стенах Diamond Vogel. Краска на потолке Diamond Vogel
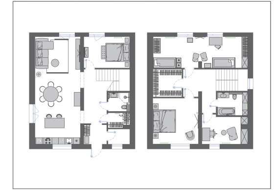
Исходная планировка дома была сохранена, однако передо мной стояла задача скорректировать вытянутые, подобные «вагончику», пропорции некоторых комнат. С помощью грамотных дизайнерских приемов удалось не только нивелировать эту особенность, но и превратить ее в стилистическое преимущество.
Первый этаж объединяет в себе зону кухни-гостиной с выходом на террасу, небольшую спальню с отдельным выходом в сад, душевую и постирочную. Основной прием зонирования кухни-гостиной — игра с потолком. В рабочей зоне кухни он намеренно опущен, тогда как в гостиной его украшают массивные деревянные балки. Расположенные перпендикулярно длинным стенам, они «раздвигают» пространство, делая комнату визуально шире и гармоничнее.

Гостиная. Ковер Carpet Decor. Свет Arlight. Картины Алексей Кессел. Торшер «Сгоревшая спичка» Михась Зеньков
Главная вертикаль и смысловой центр помещения — монументальный камин. В отделке использована нейтральная палитра: теплый серый керамогранит на полу и оттенок топленого молока на стенах. Эта лаконичная база становится идеальным фоном для «несовершенного» декора, который и создает душу интерьера.
Грубоватые балки из натурального дерева, мягкий ковер, пушистые меховые подушки на диване и уникальный светильник ручной работы в форме обгоревшей спички с меховым абажуром добавляют пространству тактильной теплоты и уюта.

Спальня на первом этаже. Лавка Михась Зеньков
Единое напольное покрытие на всей площади первого этажа создает ощущение целостности и простора. Входная группа решена минималистично: графитовый шкаф до потолка и зеркальные панели напротив визуально стирают границы небольшой прихожей.
Спальня выдержана в сдержанной светло-серой гамме, где акцентом выступают обои с природными мотивами. Лаконичная лавка из массива и светильник из лозы перекликаются с декором кухни-гостиной, поддерживая единую стилистику.

Коридор. Свет Arlight. Краска на стенах Diamond Vogel
Особая гордость проекта — лестница на второй этаж. Ее перила, выполненные в виде вертикальных черных трубок, задают ритм, который эхом отражается в интерьере. Эта вертикаль читается в отделке камина, в отделке стен первого этажа, в изножье обеденного стола и даже в фасадах комода в спальне. Повторяющиеся линии делают пространство цельным, понятным и успокаивающим — идеальная среда для отдыха.

Кабинет. Краска на стенах Diamond Vogel. Краска на потолке Diamond Vogel. Ковер Carpet Decor. Столик Tomasella
Второй этаж отдан под приватные зоны: хозяйскую спальню, общую детскую (без лишних перегородок, чтобы сохранить воздух), кабинет, ванную и гардеробную.
Именно на втором этаже в интерьер входит цвет — природные оттенки зеленого и терракотового в детской комнате. Цвет не только зонирует пространство, но и корректирует геометрию. Деревянные балки на потолке, словно обнимающие комнату, добавляют ей шарма и уюта, создавая то самое желанное ощущение безопасного «убежища».

Спальня на втором этаже. Ковер Carpet Decor. Краска на стенах Diamond Vogel. Краска на потолке Diamond Vogel. Гобелен Кристина Высотская
Эффект кокона в полной мере реализован и в кабинете: насыщенный темный оттенок, в который выкрашены и стены, и потолок, стирает границы, позволяя полностью погрузиться в работу или, напротив, расслабиться при помощи многоуровневого сценария освещения.
В отделке ванной комнаты и душевой использован один и тот же тип керамогранита, но в разном формате. Крупные плиты в сочетании с мелкоформатной плиткой создают динамичный ритм, а природный декор из дерева и лозы смягчает строгость камня, наполняя пространство гармонией.

Детская. Краска на стенах Diamond Vogel. Ковер Carpet Decor. Картины Алексей Кессел
В итоге получился интерьер, где нет места кричащей роскоши. Это пространство о тишине, текстурах и свете. Минимализм здесь не синоним стерильности, а инструмент, позволяющий семье чувствовать себя частью природы.