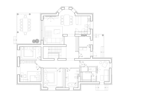
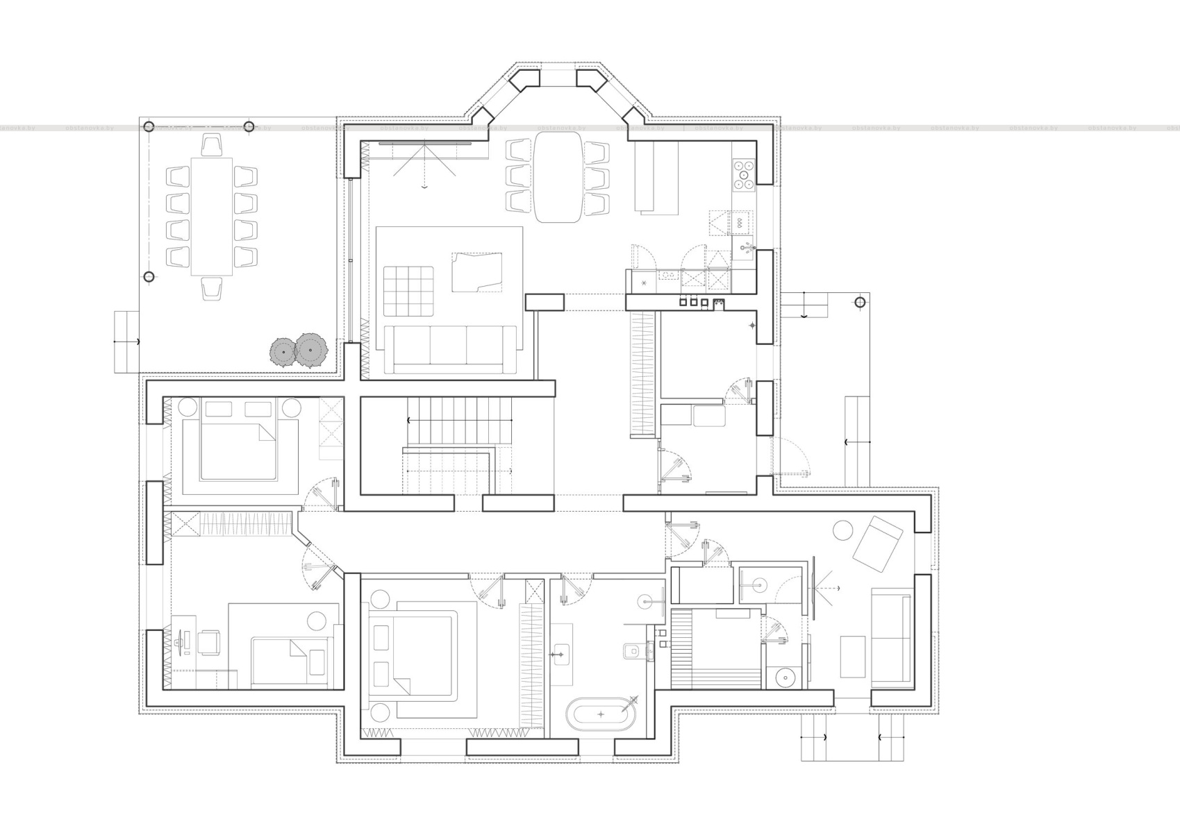
Изначально дом был куплен как типовой. В нем была общая кухня-гостиная, прихожая зона с выходом на лестницу. Лестница имела общую глухую стену, пространство казалось зажатым, без дневного света. С этого всё и началось.
Мы сделали необходимые расчеты, чтобы в стене появились сквозные проемы. Облицевав стену большеформатным керамогранитом под камень, она превратилась в монолитную плоскость, а в нишах появились полочки с подсветкой для демонстрации искусства и книг. Мягкий рассеянный свет вдоль лестницы добавил уюта.

Гостиная. Столик Sovet. Керамогранит пол и стены Ragno. Ковер Tomasella. Диван B&B Italia. Светильник трековый LEDS C4. Скульптура Максим Макаревич
Также мы смогли раскрыть потенциал планировки дома, визуально объединив пространство лестницы с гостиной. Теперь, спускаясь вниз, можно видеть сквозь стены общую зону дивана и даже немного экстерьера дома. Таким образом удалось превратить недостаток планировки в достоинство. А лестница стала местом концентрации интерьерной доминанты.

Кабинет. Диван Ditre. Паркет Coswick. Стул MIDJ. Настольная лампа Axolight. Ковер Tomasella
Немаловажную роль сыграло авторское искусство, которое заняло свое место на стенах и полках. Лестничный марш украшает объемное световое панно авторства Александра Балдакова, выполненное специально для этого объекта. Оно напоминает о традиционных ремеслах плетения из лозы и соломы.

Лестница. Керамогранит Ragno. Световое панно Александр Балдаков
Форма вертикальных элементов выполнена так, что при повороте взгляда зритель видит разную объемную композицию и мерцание по краям. Природные мотивы делают интерьер теплым и уникальным.
Все материалы и цветовая палитра перекликаются во всех комнатах, делая пространство единым целым. За основу взяты природные фактуры дерева и камня.

Ванная. Сантехника Omnires. Столик Eforma. Плитка Ragno
Большое внимание уделено тактильности материалов. Во всем доме продуманы разные сценарии освещения, уделено внимание функционалу и качеству мебели. Спокойная цветовая гамма создает уютное и теплое пространство, которое рождает внутреннее ощущение спокойствия и гармонии.