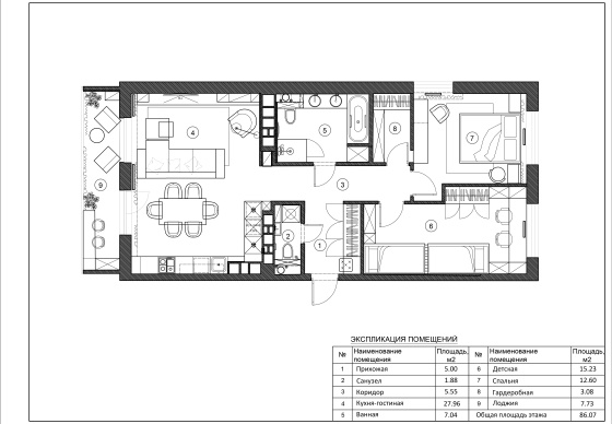
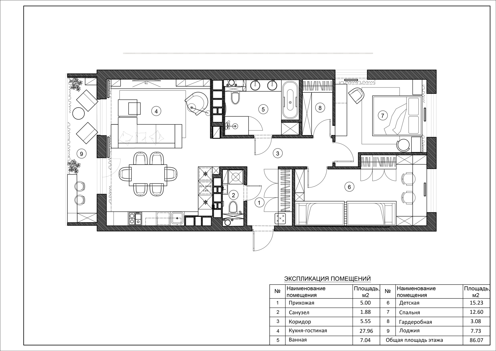
Проект квартиры площадью 86,07 м2 был разработан для семьи с двумя детьми-двойняшками. Основным запросом при разработке интерьера было создать уютное пространство для отдыха и совместного семейного досуга.
При этом важно было сохранить баланс между яркими необычными акцентами, отражающими характер заказчиков, и общим спокойным тоном интерьера.

Гостиная. Ковер Carpet Decor. Подвесной светильник Nowodvorski
Работа над проектом началась ранней весной, что стало отправной точкой в стилистической концепции интерьера: чёрно-белые оттенки тающего снега и голой земли образно перенеслись в интерьер — в цвета и текстуру отделки.
Каркасные элементы мебели и светильников напоминают силуэты деревьев без крон, а золотые детали стали символами первых весенних лучей солнца, пробивающихся через серое небо. При этом ключевым цветовым вдохновением — марсала — стал образ самой заказчицы, а точнее, оттенок её губной помады.

Самым ярким цветовым пятном в интерьере является входная группа. С неё начинается знакомство со всем интерьером. Именно её выделили бордовым цветом.
Такой приём позволяет задать настроение всей квартире, сохраняя общий тон пространства спокойным. Здесь же находится гостевой санузел с постирочной зоной, выполненный в цвет прихожей.

Прихожая. Керамогранит на полу Ariostea. Ваза AlmiDecor
Дерзости интерьеру санузла придаёт роспись стен аэрозольной краской словом «Amor» — символ любви, весны и рождения чего-то нового, которую под заказ для проекта выполнила художница Мария Копеть.
Пространство кухни-гостиной компактно включает в себя все необходимые функции: кухонную, обеденную, зону отдыха и чтения книг. Ключевым композиционным элементом помещения являются подвесные шкафы кухни, выполненные из жидкого металла.

Кухня. Керамогранит на фартуке Ariostea. Керамогранит на полу LaFaenza. Cветильники накладные Maytoni. Стулья Sandalyeci. Ваза AlmiDecor. Смеситель Omoikiri
В зоне гостиной их поддерживает латунный элемент картины, автором которой является дизайнер Татьяна Колодей, — тот самый первый весенний луч.
Органично в концепцию вписался керамогранит La Faenza Bianco Onice. Глянцевая поверхность и мягкий рисунок оникса добавляют насыщенному деталями пространству воздуха и создают эффект слегка подтаявшего льда.

Гостиная. Картина «Луч солнца» Татьяна Колодей
Вытянутая планировка квартиры с входной группой по центру позволила чётко разделить пространство на две функциональные зоны: общую и приватную.
Соединяет их длинный коридор со скрытой подсветкой встроенных плинтусов. Чётко посаженная на визуальную ось угловая картина художницы Валерии Каплан является завершающей композиционной точкой общего пространства.

Спальня. Ковер Carpet Decor. Бра Aromas del Campo. Подвесной светильник Odeon Light. Ваза AlmiDecor
Спальня выполнена в такой же стилистике и цветовой гамме, как и остальная квартира. Компактное пространство, кроме кровати, вмещает в себя туалетный столик и небольшую зону рабочего кабинета. Поэтому, чтобы зрительно увеличить помещение, между гардеробной и спальней была установлена стационарная стеклянная перегородка. Стекло цвета графит при выключенном свете органично сливается с общим тёмным фоном стены, но при включённой подсветке полок в гардеробной наполняет интерьер спальни тёплым светом и дополнительным объёмом воздуха.