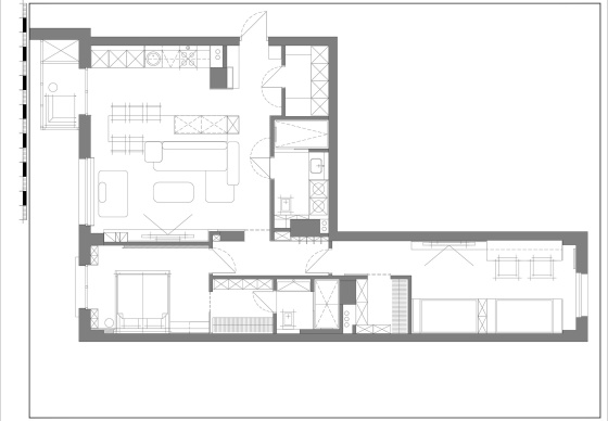
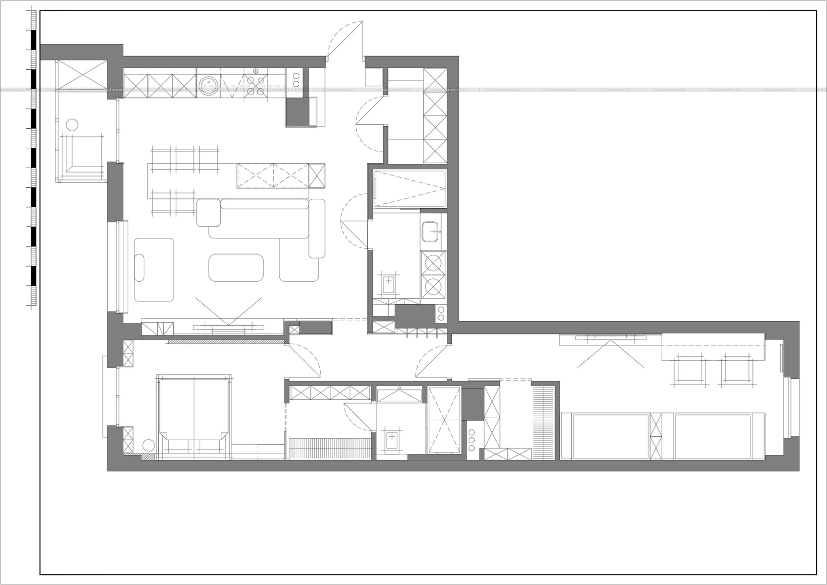
Проект квартиры площадью 110 м2 в «ЖК Олимпик парк» мы спроектировали и реализовали для семьи из четырёх человек. Заказчики — современные, творческие люди, ценящие комфорт, функциональность и минималистическую эстетику пространства, оживлённую предметами искусства.
Перед нами стояла задача разработать удобную и продуманную квартиру с грамотно запроектированными функциональными зонами, при этом создать лёгкое, наполненное воздухом пространство.

Гостиная. Паркет Meister. Розетки и выключатели Gira. Ковёр в гостиной Tomasella. Ваза на кухонном столе Menu. Корпусная мебель Domani. Стулья в столовой EMU. Декоративная лепнина Юрий Певнев
Центральной зоной всей квартиры является гостиная, объединённая с кухней-столовой. Стол с островом функционально разделяют зоны, но сохраняют ощущение просторного цельного объёма.
Этот эффект усиливают высокие потолки 3,5 м и обширное остекление, открывающее роскошные виды на природный ландшафт.

Кухня. Бытовая техника SMEG. Паркет Meister. Розетки и выключатели Gira. Стулья в столовой EMU. Ваза на кухонном столе Menu. Корпусная мебель Domani
Жилые комнаты спроектированы с учётом всех пожеланий и отражают индивидуальность и стиль жизни заказчиков. В каждом жилом пространстве квартиры мы предусмотрели гардеробную комнату, что позволило добиться эффекта свободных и просторных помещений, не перегруженных шкафами и зонами хранения.

Спальня. Розетки и выключатели Gira. Паркет Meister. Корпусная мебель Domani. Картина «Музыка внутри» Юрий Певнев
В отделке помещений мы использовали светлые природные текстуры камня, шпона дуба и металла, а красной нитью и акцентным решением по всей квартире проходят элементы декора и фурнитуры в медном цвете.

Детская. Паркет Meister. Корпусная мебель Domani. Светильники бра Artemide. Стулья Knoll. Краска Caparol
В санузлах мы выбрали керамику фабрики WOW — эффектную, смелую, создающую особую энергетику и превращающую функциональное пространство в арт-объект.