В этом проекте мне достались почти идеальные условия: полная творческая свобода и заказчики, которые быстро принимали решения. Их единственным пожеланием было светлое пространство с ощущением простора и использование жалюзи, поскольку квартира находится на первом этаже.
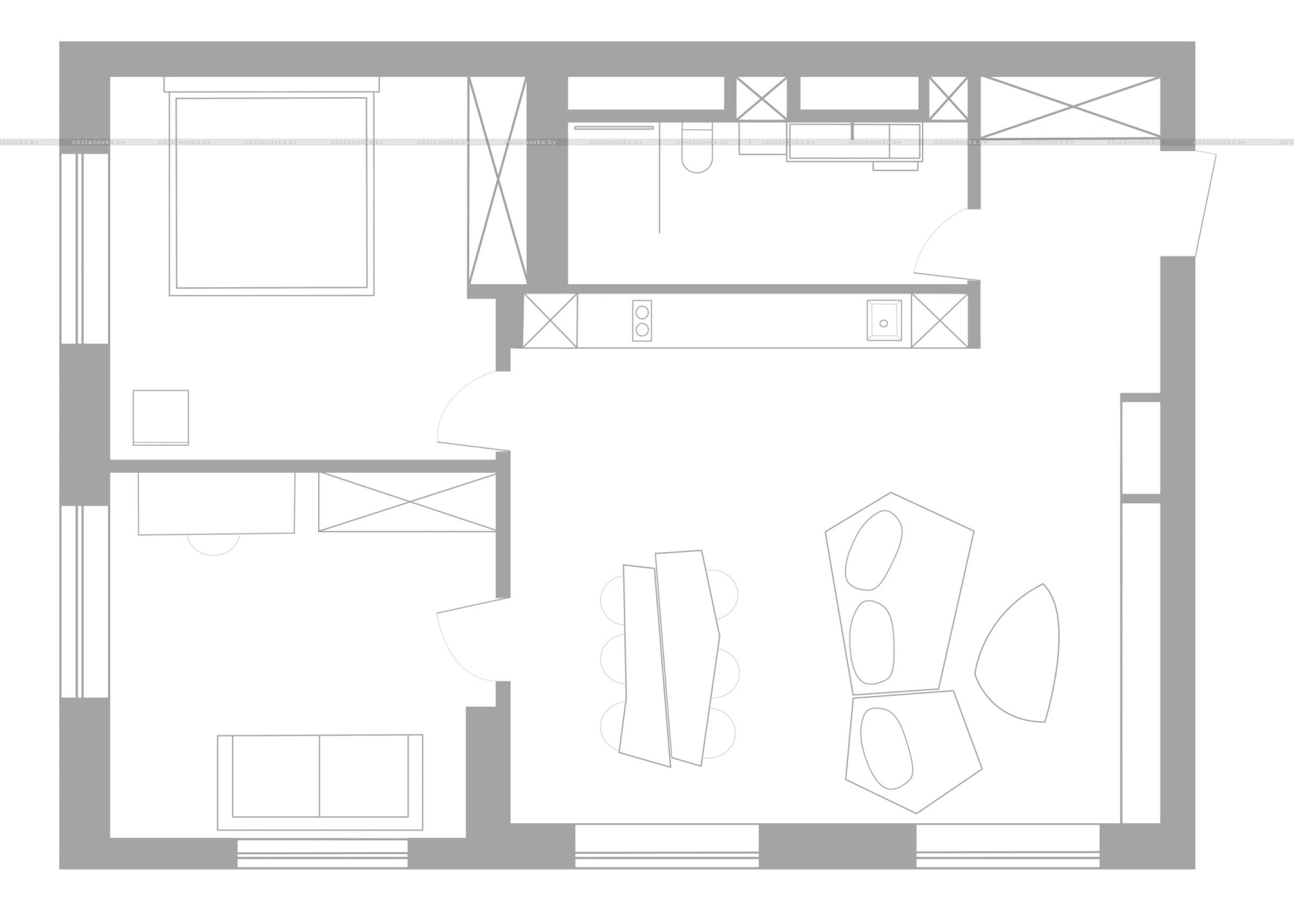
Объектом стала квартира свободной планировки площадью 70 кв. м в центре Минска, где ключевым решением стало объединение лоджии с основной зоной. Это позволило создать просторное общее пространство, дополнить его гостевой комнатой и спальней.

Гостиная. Картина Лена Гиль. Скульптура Максим Макаревич
Поскольку квартира предназначалась лишь для периодического пребывания и владельцы не хотели использовать дорогие бренды, мне пришлось создавать практически всю мебель самостоятельно, чтобы интерьер получился уникальным и избегал банальных массовых решений.
Я спроектировал асимметричный диван, журнальный и обеденный столы, кровать, умывальник из травертина, а также создал несколько арт-объектов. Умывальник был отмечен на iSaloni и победил в местном конкурсе предметного дизайна.

Кухня-гостиная. Светильник 101copenhagen
Подбор искусства был особенно важен. В спальне появился стул архитектора Ильи Козака, который я приметил на выставке современного искусства, а художница Лена Гиль написала для проекта картину «Вячэра».
Остальные арт-объекты я создал сам, играя с объёмами, фактурами чёрного металла и нержавейки, находя красоту в грубом и несовершенном.

Спальня. Стул Илья Козак
Основная идея в отделке — лёгкая и тёплая палитра: белые и светло-серые тона, отсутствие чёрного, исключительно матовые поверхности. Поскольку пространство компактное, а штукатуркой отделаны и стены, и потолок, я выбрал минимальную фактурность, чтобы интерьер оставался лёгким и воздушным, с едва заметными переливами.
После долгих поисков такой материал удалось найти в «Робім з розумам». Такая основа придала интерьеру мягкость и воздушность. Смелые асимметричные формы мебели сделали пространство выразительным, но не перегруженным. Арт-объекты из металла добавили дерзости, а кастомизированные венские стулья, окрашенные в два цвета, выглядят современно.

Спальня. Светильник Flos
Хотя заказчики работают с натуральным камнем и изначально хотели использовать его активно, я настоял на более деликатном подходе. Камень применялся точечно — из него изготовили обеденный стол, умывальник и кухонную столешницу. Это позволило сохранить лёгкость и чистоту, не отвлекая внимание от форм мебели.
Сам выбор оттенка травертина был непростым: он должен был гармонировать с приглушённой палитрой, не перетягивая внимание на себя.

Кухня спроектирована максимально лаконично: без верхних шкафов, с просторной рабочей зоной. Санузел решён в том же ключе: душ без порога и акцентный умывальник на двух пьедесталах со щелевым сливом из травертина. Все системы хранения спрятаны в нишах и отделаны той же матовой штукатуркой, что и стены, что создаёт цельность и ненавязчивость.

Сделать компактное пространство с невысокими потолками лёгким и воздушным было непросто, но за счёт продуманной планировки, цветовой палитры и материалов удалось добиться нужного ощущения простора. Несмотря на свободу, проект не был лишён сложностей.
Приходилось принимать решения за заказчиков, которые часто соглашались с предложениями, не углубляясь в детали. Ещё одним вызовом стали сжатые сроки, продиктованные быстрым ритмом жизни владельцев. Особенно непросто было совмещать этот темп с необходимостью проектировать практически всю мебель с нуля.

Возможно, именно это сочетание обстоятельств — отказ от брендов, плотные сроки и необходимость работать в ограничениях — и помогло создать цельный и необычный результат.
Я считаю, мне удалось сделать эту квартиру воздушной и лёгкой, наполненной воздухом. Я отошёл от простоты и аскетизма, чтобы воплотить свои задумки и эксперименты с радикально современным предметным дизайном. Для меня этот проект стал доказательством того, что именно ограничения рождают самые интересные и смелые решения.