Лёгкий и игривый интерьер, вдохновлённый Лазурным берегом и настоящим французским «joie de vivre», реализованный дизайн-студией DIZZO в самом сердце Минска. Элегантность и чистота — вот он, основной запрос, пришедший со стороны заказчиков.
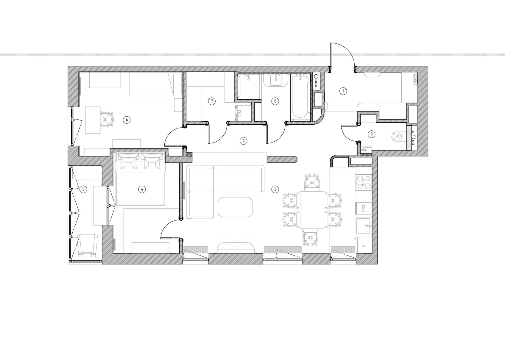
В этом проекте мы предлагаем взглянуть на интерьер небольшой квартиры площадью 68 м², где каждый сантиметр пространства используется с максимальной эффективностью, при этом не перегружен и сохраняет свою атмосферу лёгкости и уюта. Интерьер, который вобрал в себя всё очарование и живописность французского побережья — с его мягким светом, морскими пейзажами и расслабленной атмосферой, характерной для Лазурного берега.

Кухня. Подвесные светильники &Tradition
В роли заказчиков в этом проекте выступила молодая семья с ребёнком школьного возраста. Пара обратилась в нашу студию после неудачного сотрудничества с предыдущими дизайнерами с просьбой создать более уютный, лёгкий и в то же время современный интерьер для их семьи.

Так наше пространство постепенно стало наполняться объектами со смыслом, где каждая деталь имеет особое значение для наших заказчиков, отражает их характер, любовь к искусству и увлечения по жизни.
Цветовая палитра интерьера, вдохновлённого французским побережьем, создаёт атмосферу лёгкости и умиротворённости — как утренний бриз или закат на побережье Лазурного берега. Тёплые песочные оттенки в сочетании с прохладными голубыми и бирюзовыми тонами, яркие акценты терракотового цвета и натуральные материалы создают пространство, в котором хочется отдыхать и наслаждаться каждым моментом.

Спальня. Бра Aromas del Campo
Этот интерьер, как и французское побережье, предлагает идеальное сочетание элегантности, уюта и свежести природы.
А выбранные оттенки привносят в пространство ощущение лёгкости и изысканной простоты — как если бы каждый день здесь был полон солнечного света и морского бриза.

Детская. Кровать IKEA
В качестве акцентов для интерьера были выбраны тёплые оранжевые и терракотовые оттенки, которые вдохновлены цветами заката и древних кирпичных стен приморских деревушек. Эти глубокие цвета вносят свою нотку тепла и глубины, подчёркивая уют и привнесённое французское очарование.
Добавление тёплых акцентов в виде древесных текстур и мягких пастельных тонов создаёт гармонию и в очередной раз подчёркивает элегантность и современность данного интерьера.

Гостиная. Ковер Carpet Decor. Столики Алексей Дайнеко
Для хозяйской спальни было выбрано небольшое камерное помещение площадью всего 9 м², а большая по площади комната была отдана дочке хозяев.
Дабы избежать неудобства с проходами и решить вопрос с хранением вещей, была разработана специальная кровать-подиум со скрытым местом для хранения. Получилось, на наш взгляд, ярко, уютно и при этом очень функционально.

Спальня. Спальня. Бра Aromas del Campo
Так, для усиления средиземноморского ощущения, в интерьер были введены текстуры, напоминающие о природном богатстве и атмосфере юга Франции. Деревянные элементы в тёплых светлых оттенках и керамические плитки с контрастной фугой на швах в ванной комнате добавляют текстурное разнообразие и создают ощущение природной гармонии.
Много мебели в этом проекте было изготовлено под заказ по нашим эскизам, остальная часть — бренды белорусских и европейских производителей.

Ключевым элементом этого интерьера является освещение, которое играет важную роль в создании атмосферы. В проекте используется несколько уровней освещения: от мягкого общего света до акцентного освещения, которое выделяет отдельные элементы. Среди них — винтажный свет от Meblo by Harvey Guzzini, современные светильники Aromas del Campo и уже давно ставший легендарным светильник Flower Pot от &Tradition.

Нотки прошлого и настоящего, лаконично вплетённые в канву нашего интерьерного повествования, — залог создания столь живого и наполненного пространства!