Интерьер создавался для молодого человека, который работает в сфере IT.
Его пожеланием было создать идеальный интерьер для жизни с семьёй.
Главным критерием был уют. Также для заказчика были важны функциональность, практичность и удобство.

Главными атрибутами в этом интерьере являются двери скрытого монтажа, теневой плинтус, гладкие фасады и крашеные стены. Интерьер получился очень уютным за счёт применения оттенков бежевого, очень тёплых тонов, большого количества дерева, природных материалов и элементов эко-стиля.
Конечно, важную роль играет и освещение. Практически в каждом помещении мы применяли различные декоративные подсветки, которые создают в вечернее время очень уютную атмосферу.

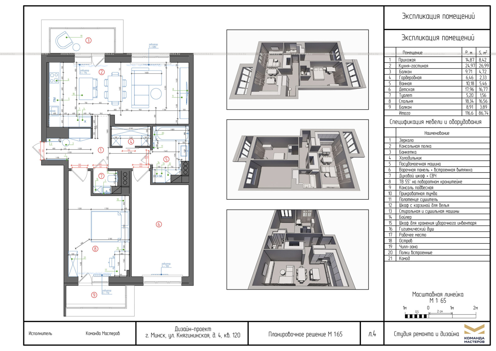
Кухня-гостиная
В рабочей зоне на кухне напольным покрытием является керамогранит. Использовали тёплый пол, чтобы приготовление еды доставляло заказчику одно удовольствие.
Верхние фасады кухни — МДФ крашеный, нижние — МДФ шпонированный, столешница — кварцевый агломерат.

Кухня-гостиная. Варочная панель Electrolux
Стол-остров позволит заказчику перекусить, выпить чашечку кофе. Чтобы во время этого процесса он мог заряжать телефон, мы встроили розетки в столешницу. Они появляются по нажатию клавиши.
Предусмотрен большой обеденный стол для душевных семейных вечеров.
Спальня
Комната очень спокойная и без единой лишней детали. Большая индивидуальная кровать выглядит очень уютной и мягкой. Подсветка стены стала украшением интерьера и создала ещё один сценарий освещения.

Спальня. Потолочный светильник Maytoni
Одним из требований заказчика было размещение комфортного рабочего места. Поэтому был выбран стол с регулировкой высоты по нажатию клавиши. Заказчик сможет установить идеальный для себя уровень столешницы.
Ванная
В зоне душевой есть всё необходимое: полочки для хранения шампуней, уходовых средств, стеклянная шторка, тропическая лейка и встроенный смеситель.

Ванная. Душевая шторка на ванну Radaway
Шкаф со стиральной и сушильной машинами предоставляет быстрый и удобный доступ к узлу распределения воды, бойлеру. В нём же расположились места для хранения.
Прихожая
Прихожая сразу притягивает к себе внимание шпонированными модулями и отделкой дверного полотна. Ещё одна точка притяжения — шпонированный шкаф с парящим эффектом. Под ним расположилась зона хранения обуви.

Прихожая. Настенный светильник Maytoni
Дизайнеры разместили у входной двери мастер-выключатель, который по нажатию выключает всё освещение в квартире. Благодаря ему перед уходом из квартиры не нужно проверять, выключен ли свет во всех помещениях.