Этот проект создан и реализован для семьи, которая любит свет и простор в неоклассическом стиле.
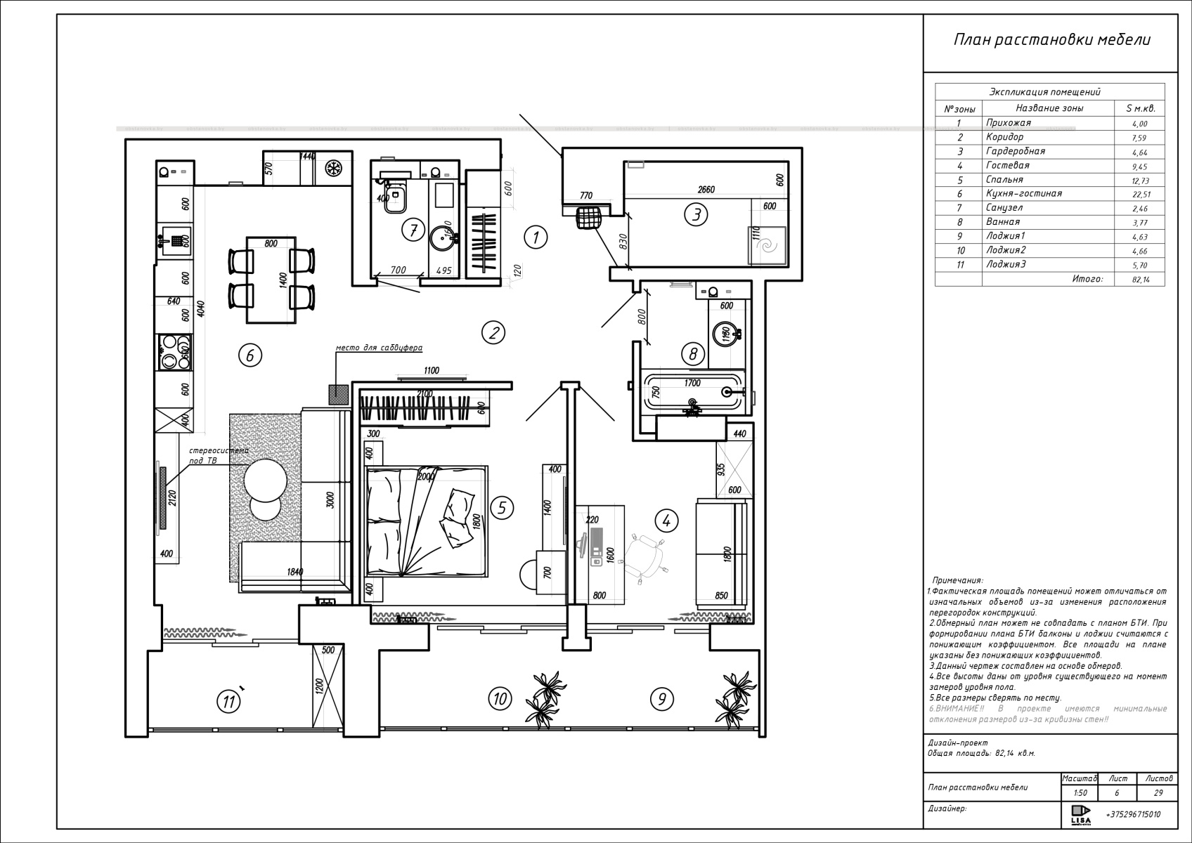
Дизайн-проект квартиры показывает, как даже небольшая площадь может стать дизайнерским пространством. Квартира площадью 82,14 кв. м расположена в современном районе Минска.
Функциональность пространства Golden Elegance
Квартира разделена на зоны так, чтобы сохранить свободу движения. Кухня-столовая объединена с гостиной. Везде — встроенная и корпусная мебель белых оттенков, что в сочетании со светлыми стенами дает приятный глазу фон и ощущение свободы.

Прихожая. Корпусная мебель КУБ Мебель. Электроустановка Gira. Декор SIA. Декор Enzo De Gasperi. Краска Caparol
Была поставлена заказчиком задача сделать красивое место для селфи в зеркале. Для этого мы решили создать авторское панно в коридоре и разместить максимально большое зеркало на стене, чтобы при отражении панно создавало красивый фон для узнаваемых фотографий. Нам удалось разместить возле входа гардеробную-прачечную, что значительно сэкономило место для шкафа в прихожей.
Материалы и цвета Golden Elegance
Материалы отделки стен во всех помещениях — окраска, были выбраны в палитре Caparol. Цветовая гамма основана на едином сочетании: светлые теплые стены, светлый пол и мебель, золотые детали, без ярких акцентов. Такой выбор материалов и цветов делает интерьер долговечным и не выходящим из моды.

Гостиная. Плитка Ariostea. Корпусная мебель КУБ Мебель. Светильники Odeon Light. Электроустановка Gira. Декор SIA. Декор Enzo De Gasperi. Краска Caparol
Освещение и декор Golden Elegance
Свет играет важную роль в этом проекте, главная задача — реализовать его обволакивающим, для приятного времяпровождения семьи. Мягкое теплое освещение подчеркивает мерцающие золотые детали отделки стен и фурнитуры светильников. Декор ненавязчивый, небольшими акцентами.

Спальня. Краска Caparol. Светильники Odeon Light. Электроустановка Gira. Декор SIA. Декор Enzo De Gasperi
Индивидуальные решения проекта Golden Elegance
В проекте учтены все потребности заказчиков. На момент реализации детей у семьи еще не было, поэтому кабинет предполагался как будущая детская. Светлый тон стен дает возможность трансформировать кабинет в детскую с учетом габаритов места для сна и учебы.

Кабинет. Корпусная мебель КУБ Мебель. Краска Caparol. Электроустановка Gira. Декор SIA. Декор Enzo De Gasperi
Проект «Квартира на Братской» — это не просто красивый интерьер, а система красивых и ненавязчивых решений, которая делает жизнь комфортнее. Если вы хотите создать такой же стильный и уютный интерьер, свяжитесь с нашей командой. Мы поможем воплотить ваши идеи в реальность.