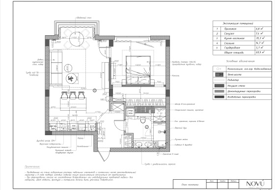
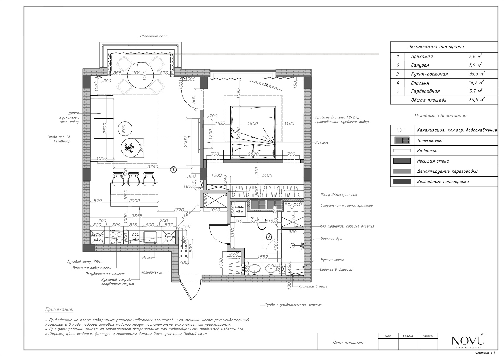
Квартира площадью 70 м² расположена в одном из престижных районов Минска и создавалась для молодой девушки с активным ритмом жизни и тонким чувством эстетики.
В основе планировочного решения — просторная кухня-гостиная-столовая, ставшая главным сценарием жизни квартиры. Здесь разместили кухню с островом, большой комфортный диван, а в зоне эркера — обеденный стол на четыре персоны.

Пространство получилось светлым, функциональным и располагающим к жизни и приёму гостей.
Спальная зона спроектирована как приватное, камерное пространство. Особый акцент — эффектная гардеробная, отделённая от спальни чёрным стеклом, которое добавляет интерьеру графичности и глубины.

Санузел задуман как самостоятельный интерьерный акцент: просторная душевая, две раковины, продуманная система хранения.
Здесь использована крупноформатная плитка в сочетании с выразительной лепниной, что создаёт эффектный диалог современной эстетики и классических деталей.

Ванная. Плитка Kerama Marazzi
Интерьер выполнен в стилистике современной классики. Цветовая палитра построена на благородных оттенках серо-бежевой гаммы и дополнена тёплым акцентом натурального шпона. Пространство получилось элегантным, женственным и вневременным — отражением характера своей хозяйки.