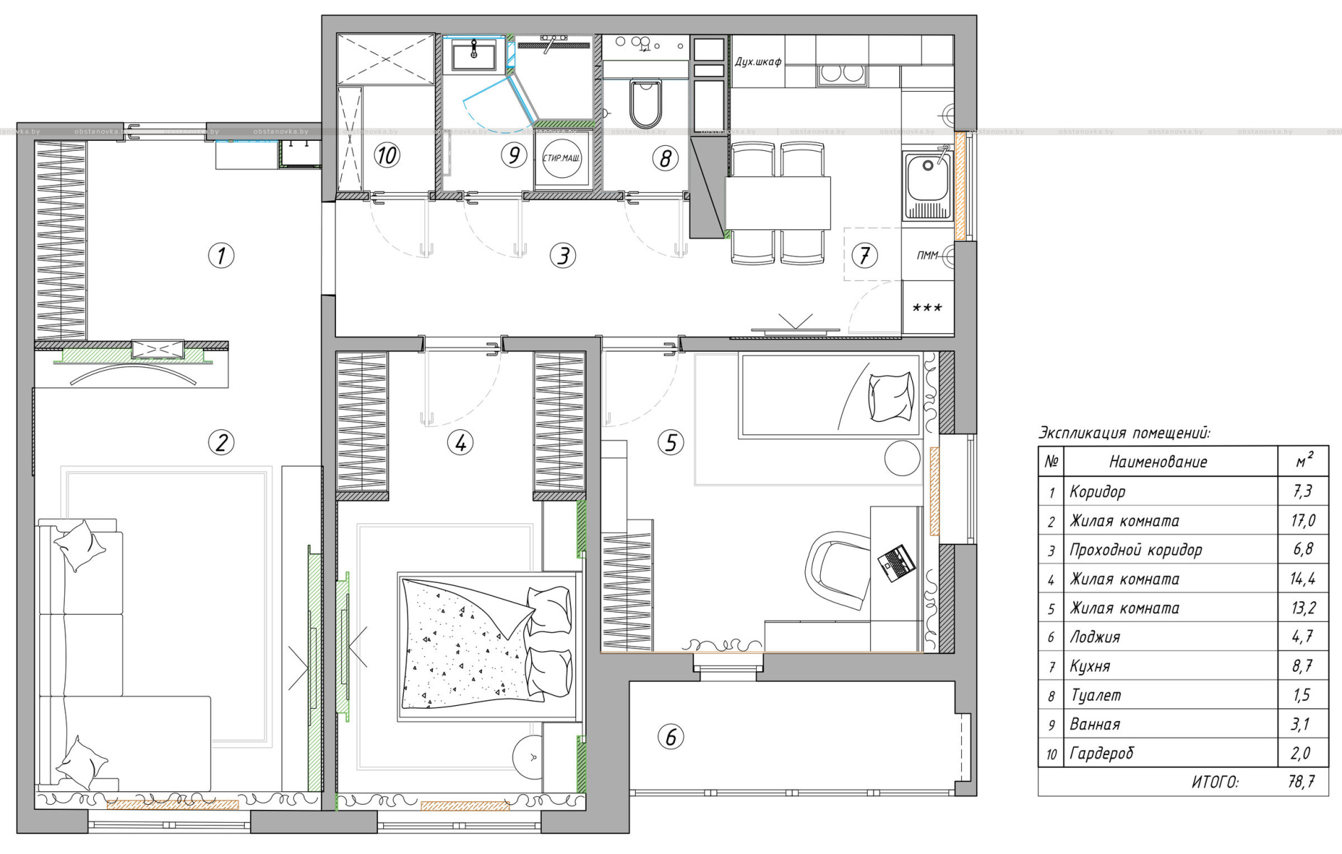
Трёхкомнатная квартира площадью 75 м² расположена в районе Новая Боровая в г. Минске. Дом панельного типа.
Главная идея проекта — создать простое, лаконичное и линейное пространство. Линии задают ритм, равновесие и баланс, обозначают основные акцентные точки и определяют визуальное направление взгляда в интерьере.

Гостиная. Ковер Carpet Decor
Со входа в квартиру — ритм линий на потолке визуально затягивает нас в гостиную. Ему вторит, в лёгком диссонансе, вертикальный ритм на створках парящего шкафа с подсветкой, а зеркало над туалетным столиком до потолка «проваливает» пространство и визуально продлевает линии потолка, словно в зазеркалье.
Такой же приём используется в коридоре: 3D-панели на потолке переходят в зеркало на простенке, визуально затягивая нас словно в зазеркалье и переходя в зону кухни.

Дизайн-проект строится на пяти китах: линии, дерево, свет, ритм, немного контраста.
Всё это нашло своё отражение в гостиной с минималистичным диваном. Вертикальный ритм линий 3D-панелей идёт в лёгкий диссонанс с продольным ритмом потолка, обозначая визуальную акцентную точку на ТВ-зону.

Здесь фактуру и ритм стены подчёркивает подсветка по контуру конструкции с нишей под ТВ, а вытянутая тумба на полу «заземляет» и подчёркивает линейность пространства, переводя взгляд в горизонталь.
Тем не менее визуально доминирующее положение в гостиной занимает зона камина. Декоративная дугообразная конструкция из дерева над тумбой с камином притягивает внимание и за счёт контраста дерева на фоне чёрной стены является главным акцентным пятном.

Гостиная. Ковер Carpet Decor
Общая концепция прослеживается и в спальне. Центральное место в ней, конечно же, занимает кровать с изголовьем до потолка. Скрытые подсветки создают интимную обстановку, делая атмосферу камерной и уютной, подчёркивают вертикальный ритм линий вокруг парящей конструкции с ТВ и на створках шкафов при входе. А «Павук» у изголовья, по древним славянским традициям, должен отгонять весь негатив и дурные сны.
В качестве основного вида отделки выбраны покраска и гипсовые 3D-панели.

Комнату для мальчика выдержали в едином стиле всей квартиры. Помещение выполнено в светлых оттенках, но с преобладанием дерева — в полках, словно врезанных в шкафы, в отделке стен деревянными панелями, в деревянных жалюзи на окнах, в паркетной доске на полу.

Детская. Ковер Carpet Decor. Космонавт Tomasella
Так как кухня небольшая, сделали её полностью в светлой гамме. Главной её особенностью является, конечно же, мойка у окна с прекрасным и умиротворяющим видом на лес. В небольшой душевой комнате изюминкой является окно между душем и раковиной.
В декорировании квартиры принимали участие декораторы: Дария Кирющенкова-Туронок и Татьяна Воробьева.