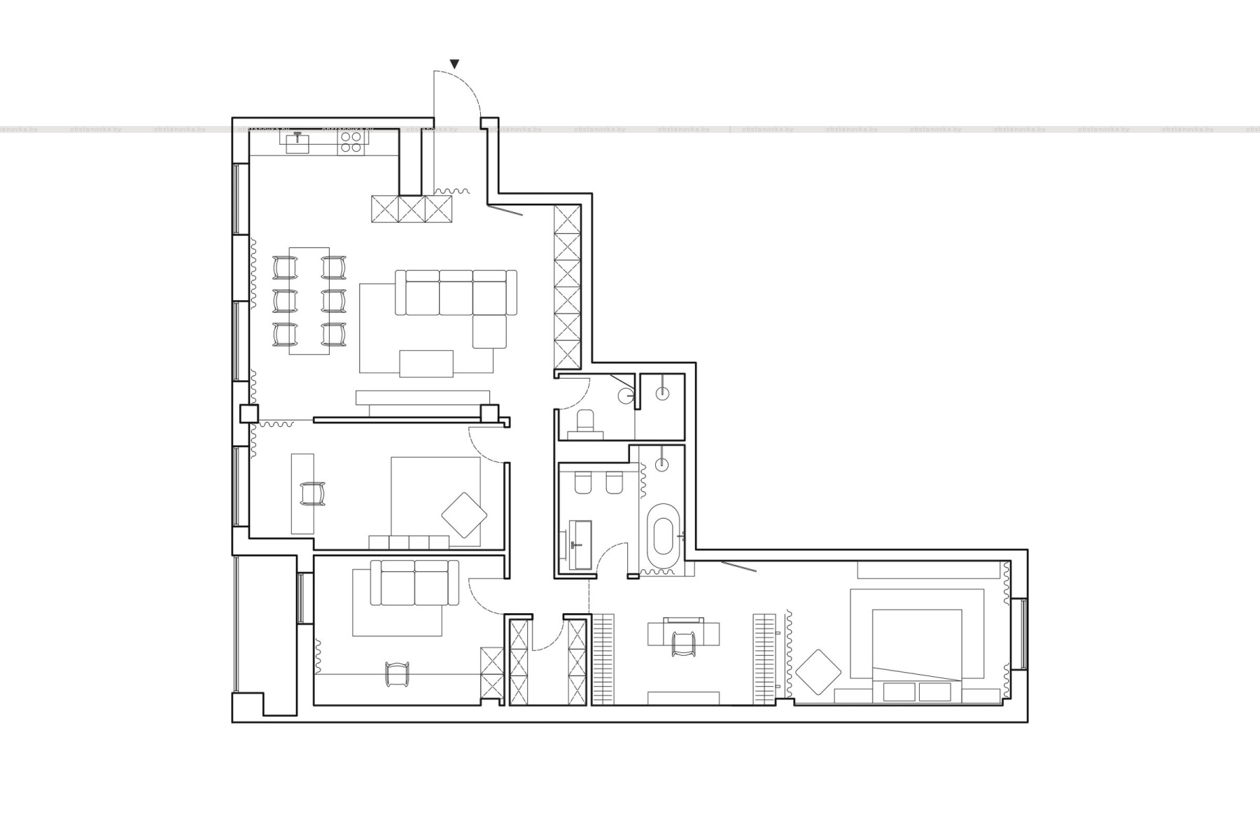
Проект интерьера квартиры для молодой семейной пары.
Особенностью проекта стали высокие (3,5 метра) потолки от застройщика, сохранённые в монолитном исполнении. Большая высота помещения позволила сделать трассировку коммуникаций скрытой в верхних ярусах мебели, оставив максимум воздуха.

Кухня. Плитка на полу кухни Casalgrande Padana. Плитка скинали WOW. Светильник бра над обеденным столом Nemo. Смесители Bruma. Паркетная доска Coswick. Декоративная штукатурка Caparol. Электроустановочные изделия Schneider Electric
Все дверные проёмы также имеют высоту в потолок, что стало не самой простой инженерной задачей. Концептуально проект строится вокруг жизни двух людей, у каждого есть своё личное пространство (кабинет), которое в дальнейшем может быть видоизменено в одну или две детские.
Обилие стекла в заполнении проёмов и перегородок позволяет создать многоплановость и подчеркнуть объём помещения. Все используемые в проекте материалы — натуральные, мы не использовали имитации.