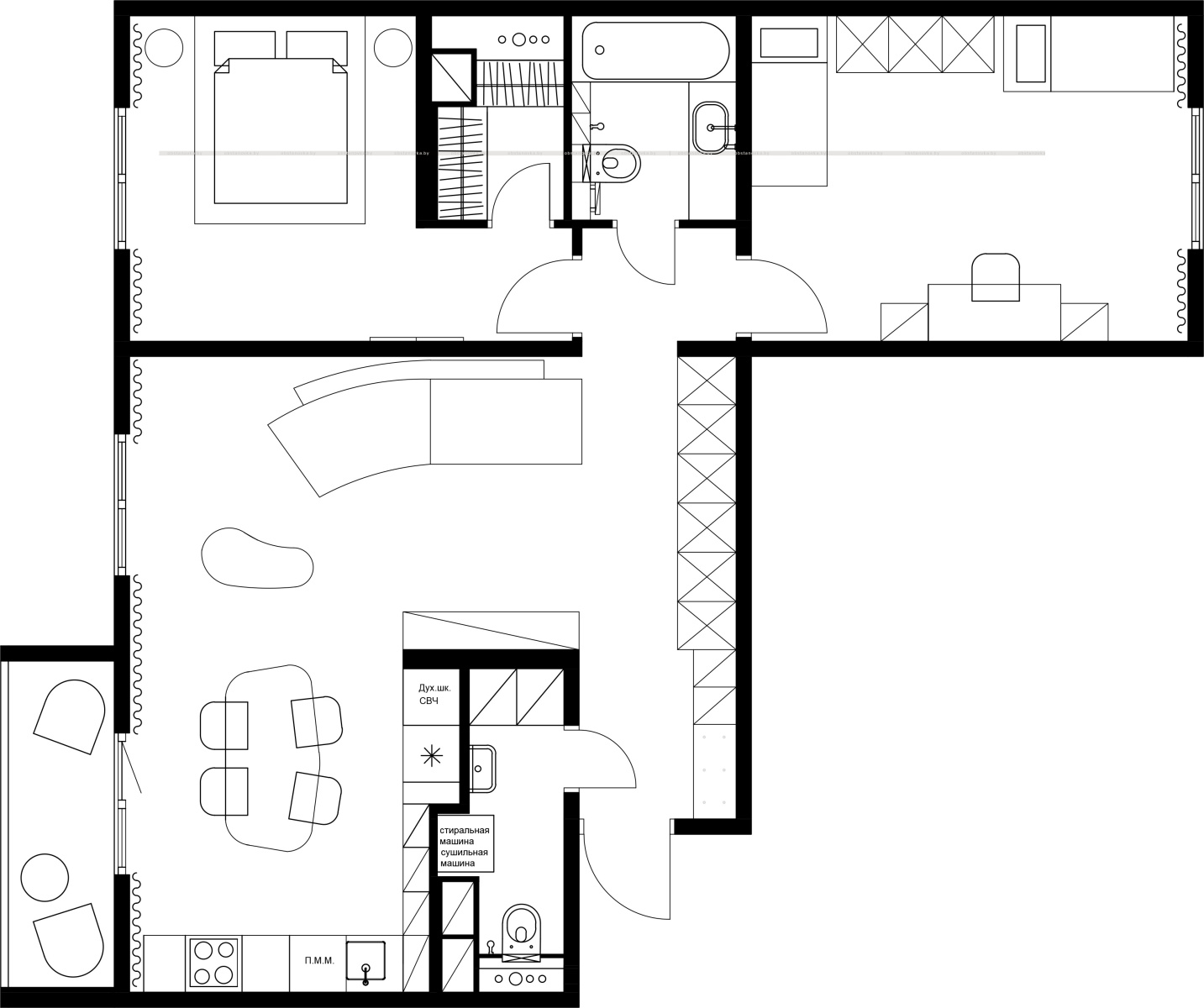
Квартира площадью 78 м2 расположена в пригороде Минска в закрытом квартале «Пирс».
Заказчики – семейная пара с двумя дочками школьного и дошкольного возраста. На первую встречу пришли подготовленные, с попытками самостоятельно решить головоломку с планировочным решением. Особенно мне запомнились их наброски по спальне, где нужно было либо отказаться от хранения, либо ставить кровать одной из сторон к стене.

Гостиная. Живопись Ольга Жебина
Чтобы не идти на неприятные компромиссы, я предложила переоборудовать санузел от застройщика, примыкающий к спальне, в гардеробную.
Так вместо двух крошечных санузлов площадью 2 м2 и 1,5 м2 появилась двухметровая гардеробная и санузел с функцией постирочной площадью 3,4 м2. Ванную комнату мы сохранили в первоначальной конфигурации, так как были ограничены конструктивными особенностями дома.

Заказчики — семья яркая, любящая путешествия, много читающая и увлекающаяся искусством. Основным пожеланием было наличие цвета в квартире и одновременно необходимость лёгкости, воздуха и возможности вносить изменения в пространство.
Так в гостиной появился белый галерейный цвет стен, чтобы можно было размещать работы художников. На момент съёмки в гостиной собрана коллекция работ Ольги Жебиной и скульптура авторства Алены Липинской.

Гостиная. Живопись Ольга Жебина
С цветом решено было работать локально в предметах интерьера, которые можно при желании заменить. За основу выбрали пудровые, персиковые и глинистые оттенки.
В гостиной дополнили их приглушёнными серо‑зелёными оттенками в текстиле. В прихожей цвет набирает максимальную насыщенность и переходит в обоженный кирпич.

В спальне фоновый белый меняется на цвет непросеянной муки, что создаёт ощущение мягкости.
Охристые и терракотовые оттенки уравновешиваются зелёными, обволакивают, успокаивают и дают чувство причастности к природе.

В ванной комнате к персиковому оттенку плитки был выбран фоновый брутальный серый и чёрные контрастные элементы декора и сантехники.
В детской роль зелёного меняется, он становится доминирующим, и уже его дополняют пудровые оттенки. За счёт оклеивания 1/3 стен в яркие зелёные обои удаётся добиться игривости пространства и сохранить белый фоновый цвет, необходимый для развески картин девочек, которые ходят в художественную школу, постоянно рисуют, и именно их работы участвуют в съёмке детской комнаты.

Детская. Молдинги Orac Decor. Стол IKEA. Стеллажи IKEA
Помимо работы с цветом, для создания многослойности в пространстве также используется работа с ритмом в виде повторения форм светильников, фасадов на кухне, декоративных панелях. Чёрный цвет в небольших пропорциях добавляет глубины и контраста в интерьер. Нестандартные формы стола, мягкой группы, зеркал, овальные и арочные формы придают интерьеру художественный образ, отражая характер владельцев интерьера.