Баланс между красотой и функциональностью.
Основная задача проекта — создать пространство высокого уровня, которое не только будет радовать глаз своим дизайном, подходящим под высокие требования заказчика, но и выполнено высококачественными решениями в материалах и декоративных приёмах. При этом оно должно быть удобным в повседневном использовании.

Кабинет. Светильники Sylcom. Обои Morris & Co.. Декор AlmiDecor. Декор SIA. Декор Enzo De Gasperi. Декор Seletti. Ковер Maison Carpet. Электроустановка Gira. Радиатор Zehnder. Живопись Барташевич Александр
При первой встрече хозяйка пространства попросила создать тёплую классическую атмосферу с лёгкими золотыми нотками и яркими, создающими особое настроение, акцентами и цветовыми решениями.

Кабинет. Светильники Sylcom. Обои Morris & Co.. Декор AlmiDecor. Декор SIA. Декор Enzo De Gasperi. Декор Seletti. Ковер Maison Carpet. Электроустановка Gira. Живопись Барташевич Александр
Мы работали над проектом от идеи до реализации два года. Безусловно, в процессе воплощения решений по дизайну мы отходили от первоначального проекта, оставив основу, и получили итог, устраивающий в первую очередь ожидания заказчика.
Светлые тёплые стены, используемые в основном тоне квартиры, выкрашены премиальной французской краской Argile, служат фоном для шоколадных деревянных панелей и насыщенных тонов мебели в гостиной и кабинете, при этом — прозрачной, невесомой по цветам спальне. Такой подход делает интерьер живым, но не перегруженным.

Кухня. Плитка Sant'Agostino. Краска Argile. Электроустановка Gira. Светильник Loft It. Декор AlmiDecor. Декор SIA. Декор Enzo De Gasperi. Декор Seletti
В каждой комнате есть комфортная зона отдыха: в гостиной и кабинете — мягкие обволакивающие диваны, кресла с журнальными столиками, в спальне — уголок для чтения с креслом и тумбочками ручной работы.

Гостиная. Плитка Sant'Agostino. Ковер Maison Carpet. Краска Argile. Электроустановка Gira. Светильник Loft It. Декор AlmiDecor. Декор SIA. Декор Enzo De Gasperi. Декор Seletti
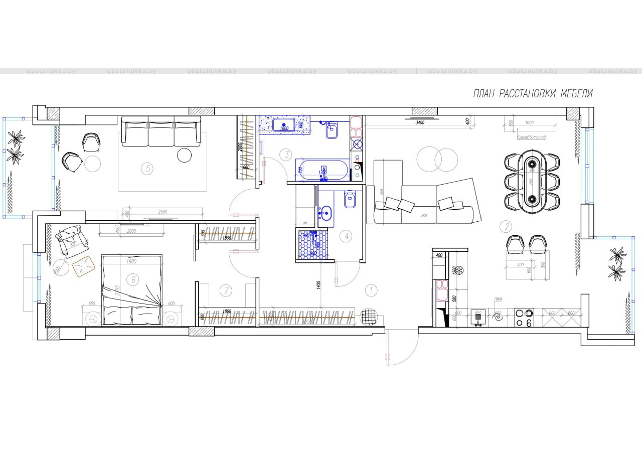
Функциональность пространства Premium Residence
Планировка изначально была продумана до мелочей. Кухня-студия объединена с гостиной, но остаётся самостоятельной зоной благодаря удачно расположенному острову. В кухне, в изящном с виду буфете, спрятана мощнейшая система оборудования для рекуперации.

Кухня. Техника SMEG. Техника Liebherr. Плитка Sant'Agostino. Краска Argile. Электроустановка Gira. Светильник Loft It. Декор AlmiDecor. Декор SIA. Декор Enzo De Gasperi. Декор Seletti
Встроенные шкафы в коридоре и выделенная гардеробная в спальне экономят место, а высокие потолки играют на руку и визуально увеличивают пространство.
Прачечная встроена в нишу в коридоре, совершенно не бросается в глаза.

Прихожая. Светильник Sylcom. Плитка Sant'Agostino. Краска Argile
Санузел и ванная комната оборудованы нишами для хранения мелочей — приём понятный и не новый, но при монтаже система перегородок оставляла свободное пространство, которое мы решили не терять.
Там же встроены системы фильтрации для ванной, корзина для белья и полки для хранения.

Санузел. Плитка Ariostea. Cантехника Villeroy & Boch. Cантехника Margaroli. Cантехника Jacob Delafon. Cантехника Laufen. Светильники Sylcom. Электроустановка Gira
Освещение и декор проекта Premium Residence
Свет играет ключевую роль в этом проекте. В гостиной установлены потолочные люстры с регулируемыми лампами, а в спальне — мягкие светильники ручной работы над кроватью.
Декор минимален, но выразителен: обои ручной работы и картины с растительными мотивами, вазы с цветами, зеркала в изящных золотых рамах.

Спальня. Краска Argile. Электроустановка Gira. Декор SIA. Декор Enzo De Gasperi
Проект Premium Residence — это не просто красивый интерьер, а целая система решений, которая делает жизнь комфортной.