Сначала будет история. Представьте себе людей неординарных, талантливых, взрослых — семейную пару с солидным жизненным статусом, посетивших почти все континенты и проживших более 15 лет в Китае, переезжая с места на место.
Семью, вернувшуюся на свою родину, чтобы обрести дом, из которого уже не нужно будет никуда уезжать, а будет лишь желание остаться. Неординарные люди заслуживают неординарных проектов, никаких клише и визуальных шаблонов.

Гостиная. Паркет Kahrs. Краска Oikos. Плитка Harmony. Плитка La Fabbrica. Стулья Driade. Встроенный свет Maytoni. Декор Coach House. Декор Eichholtz
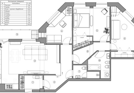
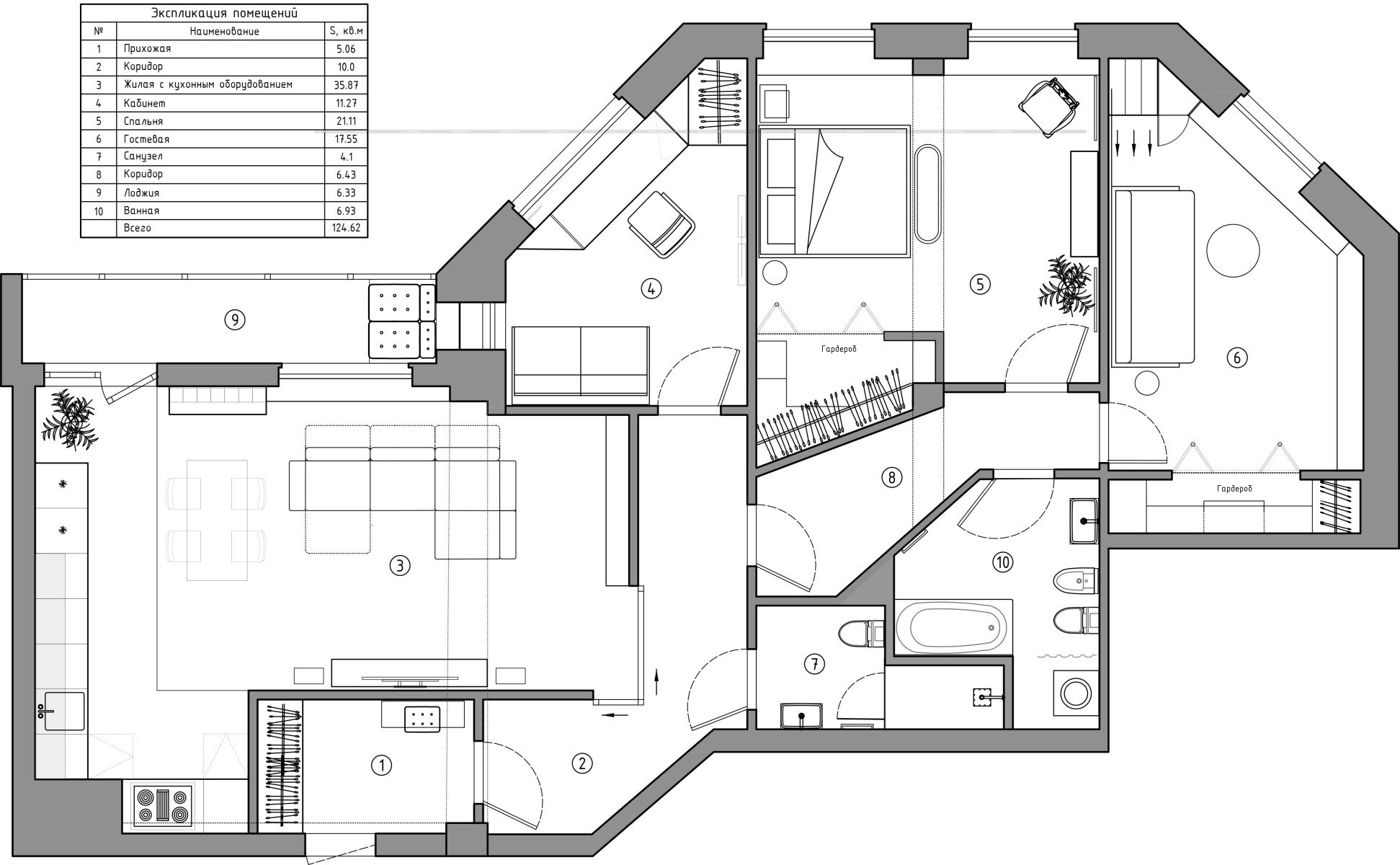
Итак, исходные данные: квартира мне досталась «с ремонтом». Передо мной стояла задача, кардинально не меняя планировку (где почти все комнаты имеют неправильную форму и острые углы), убрать все старые конструкции потолка и гардеробных, заменить двери, паркет, всю электрику, а также изменить цвет и фактуру стен.
Дизайн ванной комнаты и санузла оставить без изменений, модернизировать лишь сантехническое оборудование. Создать новый образ всему остальному пространству, найти место многочисленным предметам искусства и декору, привезённым хозяевами из разных стран, в большинстве своём из Китая, ведь они там прожили значительную часть своей жизни.

Гостиная, столовая и кухня
После демонтажа конструкций потолка и полуколонны, а также старого кухонного гарнитура, мы поняли, что работы по восстановлению всей электропроводки, сбитию старых слоёв штукатурки, выравниванию стен, не считая замены балконной двери и окон на лоджии, предстоит очень много. Видимый «ремонт» лишь прикрывал строительные огрехи и просчёты, с которыми мы столкнулись, но это, как и многое другое, оставим за кадром…

Гостиная. Ковер Carpet Decor. Паркет Kahrs. Розетки и выключатели Ospel. Краска Oikos. Встроенный свет Maytoni. Декор Coach House. Декор Eichholtz
Теперь данное пространство объединяет людей, живущих в нём, и тех, кто является их гостями. Здесь гостиная с библиотекой‑витриной и ТВ‑зоной, просторная столовая с буфетом и бутоном от Адриано Рэйчел, над обеденным столом — окружённый утончёнными стульями от Driade.
Кухня имеет самое современное наполнение, которое не лишено при этом классических форм. Вся корпусная мебель квартиры была специально спроектирована мной и изготовлена в Беларуси. Разумеется были учтены все нюансы.

Кухня. Паркет Kahrs. Розетки и выключатели Ospel Краска Oikos. Плитка Harmony. Плитка La Fabbrica. Стулья Driade. Встроенный свет Maytoni. Декор Coach House. Декор Eichholtz
Здесь индийский ковёр, итальянские светильники, европейский текстиль, шведский паркет и столик от архитектора и предметного дизайнера Алексея Дайнеко (столик Marshmallow от проекта Elephantables , авторы — О. Баричевский и А. Дайнеко) — всё это создало гармоничный, цельный интерьер. Здесь много предметов декора, картин, привезённых из разных уголков Китая, а также много книг и виниловых пластинок. Весь этот набор отлично характеризует владельцев данного пространства.
Синяя спальня
Это особенная комната для особенной женщины, яркой, харизматичной, мудрой и доброй, ведь где доброта, там и мудрость и наоборот. Здесь есть винтаж, привезённые предметы китайского искусства и декора, что‑то я создала как дополнение к ним.

Спальня. Подвесные светильники Eichholtz. Обои KT Exclusive. Розетки и выключатели Ospel. Краска Oikos
Оригинальные светильники Eichholtz, обои Exclusive Emerald и отреставрированный бабушкин секретер. Здесь бельгийский ковёр, европейский текстиль и голландская лавочка дополнили созданный образ.
Здесь гардеробная спальни как драгоценная китайская шкатулка, где за синими её дверями с тонким золотым орнаментом скрываются изображения журавлей на красном фоне, нанесённые на фасады ящиков. Этот же рисунок журавлиной пары, но в другом исполнении, был мной повторён на двери спальни.

Спальня. Подвесные светильники Eichholtz. Обои KT Exclusive. Ковер Louis De Poortere. Розетки и выключатели Ospel. Краска Oikos
Гостевая
Эта комната неправильной формы с острым углом имеет многофункциональное значение — это и спальня, и библиотека, а также комната для внутреннего созерцания, чтобы это не значило. Здесь красная дверь, фоном для неё стали классические обои в клетку, большой жёлтый диван немецкого происхождения и скульптура довольного Будды из натурального камня, улёгшегося на деревянной полке торшера.

Гостевая. Ковер Louis De Poortere. Диван KLER. Краска Oikos. Cветильники Kink Light. Встроенный свет Maytoni
Красный цвет присутствует не только на двери, но и вся внутренняя часть гардероба и нижних ящиков книжного шкафа‑витрины имеют этот цвет. Эта комната создана для увлечённого жизнью, интеллигентного и интеллектуального мужчины, который знает, чего хочет, и умеет ценить то, что имеет. Место, где есть на что оглянуться и куда устремиться. Без прошлого нет будущего, и мы в балансе времени «сейчас».
Кабинет
Это небольшое пространство неправильной формы, с большим окном и маленьким — на лоджию, требовало особого подхода. Здесь хозяин квартиры будет уединяться для своей интеллектуальной работы, музицирования, а иногда эта комната будет служить как ещё одна гостевая спальня, поэтому здесь, ко всему прочему, был предусмотрен платяной шкаф.

Кабинет. Стул Driade. Декор Eichholtz. Краска Oikos
Вся мебельная композиция, состоящая из большого письменного стола, переходящего в стеллаж и шкаф, изготовленная из натурального шпонированного дерева, нивелировала острый угол комнаты. Фоном для офортов и полки с гитарами являются обои Cole & Son Luxor, рисунок которых был повторён на двери шкафа при помощи лазерной резки.
Прихожая
Первое впечатление от интерьера создаётся именно здесь, хотя конечный вариант её дизайна в данном проекте сложился лишь под конец строительства. Этой прихожей не было в визуальной части проекта, а лишь в чертежах. Можно сказать, что прихожая здесь — это импровизация на тему всего дизайна квартиры.

Прихожая. Штукатурка Oikos. Консоль Coach House
Разные текстуры стен и потолка в едином винном оттенке с декором на стене, привезённым хозяевами из путешествий по Китая, консоль и вешалка от Coach House, зеркало и витражная дверь, хрустальная люстра и плитка на полу, которая нам понравилась и её решили не трогать, — сыграли свою уникальную мелодию, которая родилась у меня в голове.
Интерьер — как иллюстрация в книге, которую обитатели создают при помощи таланта дизайнера.
Перефразируя Иссея Мияки: мои интерьеры всегда немного не закончены, они становятся собой, когда в них проживают годами.
Здесь картина А. Лисовского, офорты И. Русачек и В. Вишневского.