Этот проект является воплощением изысканности и утончённости молодой девушки, которая смогла превратить своё первое собственное жильё в элегантный уголок, отражающий её страсть к моде и дизайну.
Дизайн интерьера играет на контрасте светлых, спокойных тонов с акцентными деталями в глубоких антрацитовых оттенках, создавая уникальное и гармоничное пространство для жизни.

Гостиная. Паркет Boen. Свет технический Arlight
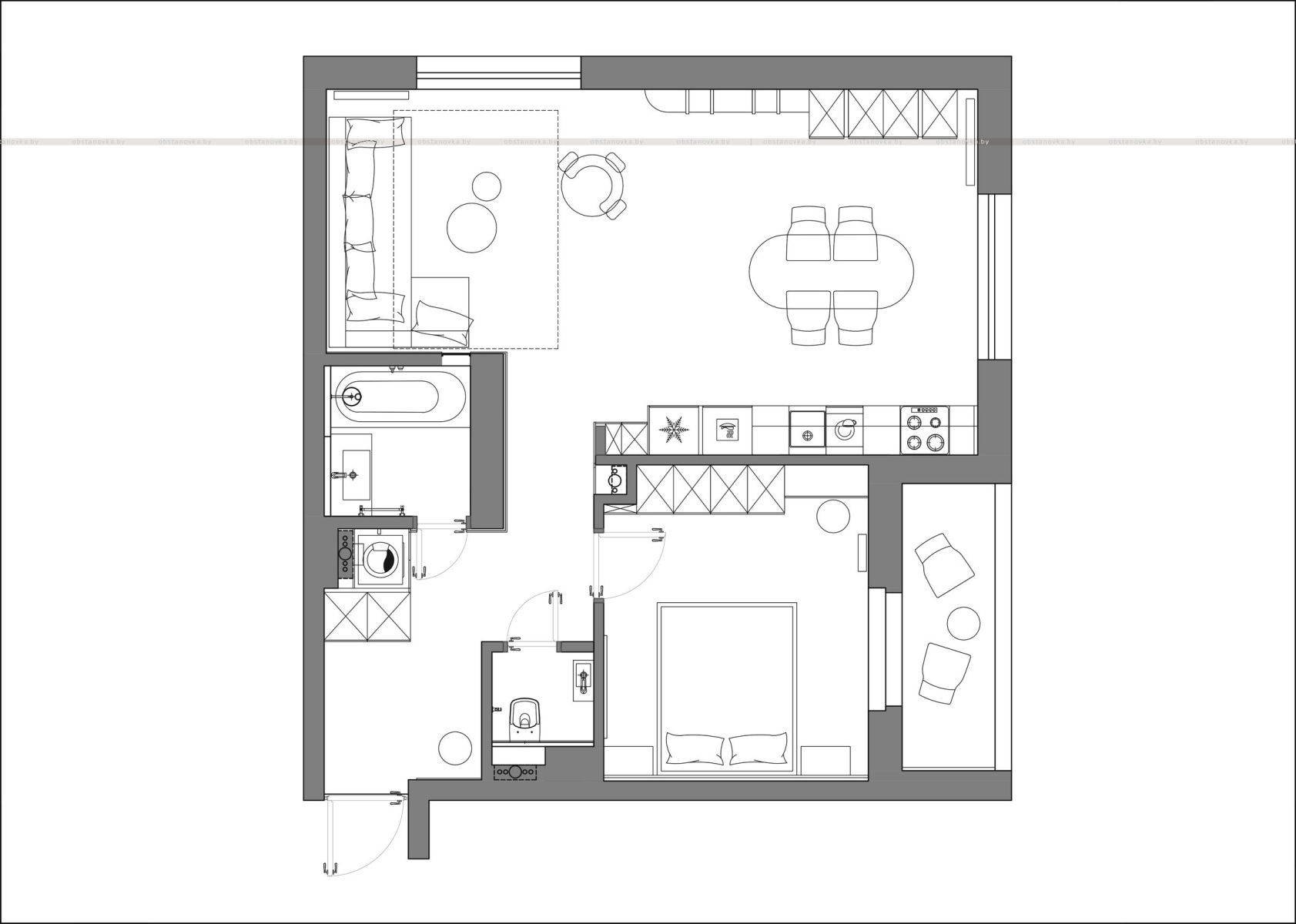
Объединённое пространство гостиной и кухни задумывалось как место для общения и приёма гостей.
Пол из светлой паркетной доски с чёрными вкраплениями придаёт зоне утончённый вид, а кухонная зона выделена керамогранитом с рисунком мрамора, в котором присутствуют необычные рыже-коричневые оттенки.

Гостиная. Паркет Boen. Корпусная мебель и кухня изготовлена по эскизам автора проекта. Свет над диваном Maytoni. Свет технический Arlight
Вся корпусная мебель в квартире была спроектирована и выполнена на заказ, что добавило уникальности каждому пространству.
В этом проекте натуральное дерево использовано с особым вниманием к текстуре и линиям, что придаёт помещениям ощущение теплоты и уюта, оставаясь при этом современным и минималистичным.

Столовая. Паркет Boen. Корпусная мебель и кухня изготовлена по эскизам автора проекта. Свет декоративный над столом Nordlux. Свет технический Arlight
Кастомизированные стеллажи с плавными линиями и минималистичными контурами отлично отражают тенденцию к органическим формам и отказу от резких углов в мебели. Такой подход не только делает пространство визуально мягче, но и поддерживает концепцию связи с природой и гармонии.
Встроенные шкафы с продолговатыми вертикальными ручками обеспечивают много места для хранения и добавляют интерьеру визуальную строгость и гармонию.

Зона прихожей. Керамогранит Ceramiche Coem. Корпусная мебель изготовлена по эскизам автора проекта. Свет технический Arlight
В зоне прихожей мы использовали керамогранит с ярко выраженными текстурами и рисунками — это настоящий тренд. «Арочный» принт добавляет динамики и игры в традиционно нейтральное пространство, делая его уникальным и запоминающимся.
Эта плитка стала настоящим акцентом всего интерьера, тонко подчёркивая концепцию индивидуальности и стиля хозяйки.

Спальня. Паркет Boen. Корпусная мебель изготовлена по эскизам автора проекта. Свет технический Arlight
Спальня гармонирует с остальными частями интерьера благодаря тому, что сохраняется общая эстетика минимализма и натуральных оттенков. Простые формы встроенной мебели, чёткие линии и натуральные текстуры создают ощущение лёгкости и спокойствия.
Здесь мы использовали светильники, которые акцентируют внимание на важных зонах, не перегружая пространство. Высокие плотные шторы продолжают общую палитру, придают спальне уют и приватность.

Спальня. Паркет Boen. Корпусная мебель изготовлена по эскизам автора проекта. Свет декоративный Nordlux. Свет технический Arlight
Одна из самых стильных и необычных деталей — окно между ванной и гостиной. Этот элемент открывает новое измерение для восприятия пространства, стирая границы между зонами и добавляя ощущение света и воздуха даже в интимные помещения, такие как ванная.
Это решение отражает тенденцию к созданию более открытых, взаимосвязанных пространств, при этом оставаясь достаточно смелым и элегантным.

Санузел. Керамогранит Fioranese
Керамогранит в стиле Kintsugi символизирует красоту в несовершенстве, украшая полы и стены ванной комнаты, придавая им глубину и текстуру.
Интерьер балансирует между минимализмом и теплом натуральных материалов, создавая модное и стильное пространство. Мы сочетали закрытые и открытые зоны, нестандартные решения с элементами, которые привносят свет и воздух в интерьер, и тщательно продумали выбор фактур и отделочных материалов.