Этот интерьер — про воздух, свет, баланс и тактильность. Клиент мечтал о пространстве, где ощущается лёгкость, где нет перегруженности деталями, но в то же время присутствует глубина.
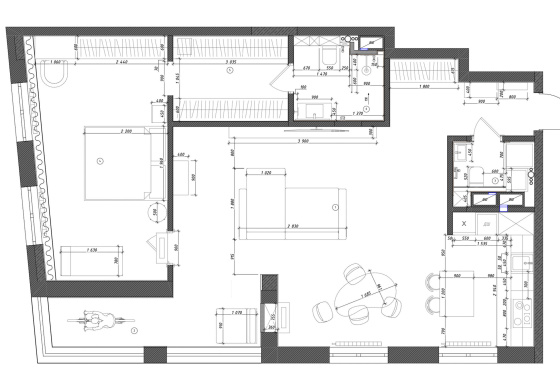
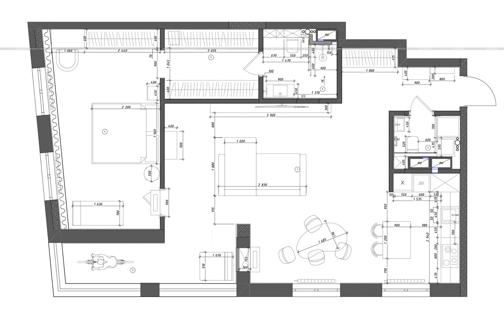
На 97 м2 удалось разместить прихожую, кухню-гостиную с обеденным столом и барной консолью, уютную TV-зону, хозяйскую спальню с гардеробной и собственной ванной комнатой, а также гостевой санузел.

Гостиная. Розетки и выключатели Jung
Кухня-гостиная и обеденная зона словно растворяются друг в друге: цвет мягко перетекает с одной фактуры на другую, мебель визуально встроена в пространство, создавая эффект архитектурного единства.
Ключевой акцент — искусство. Гостиную украшает картина Руслана Вашкевича, которая стала смысловым центром интерьера и задала ему особый ритм.

Кухня. Бра Aromas del Campo
Объединяющий цвет всей квартиры — тёплый, невесомый оттенок бежевого, который согласовал все отделочные материалы между собой: паркет, керамогранит, обои и мебельные фасады.
Было сделано множество выкрасов, пока не был найден подходящий оттенок.

Единственный выделенный объём в гостиной — «куб», сформированный периметром стен гостевого санузла и части встроенной кухни.
Оттенок выбран комплементарный, но интенсивнее, чтобы создать иллюзию помещённого куба в единое пространство.

Каждая деталь продумана до миллиметра: вместо стандартных решений — мебель, созданная по моим авторским эскизам. Кухня без тяжёлых верхних шкафов.
Встроенные шкафы, которые становятся частью стен, гардеробная, где хранение организовано так, чтобы ничего не было на виду.

Хочется отметить отдельностоящий шкаф в гостиной, созданный по моим чертежам специально для этого проекта. Лаконичные геометрические линии сочетаются с выразительной ручкой-скульптурой из натурального камня, собравшей в себя фрагменты камня, используемого в интерьере, создавая тактильный и визуальный акцент.