Главный принцип — сочетание функциональности и уюта.
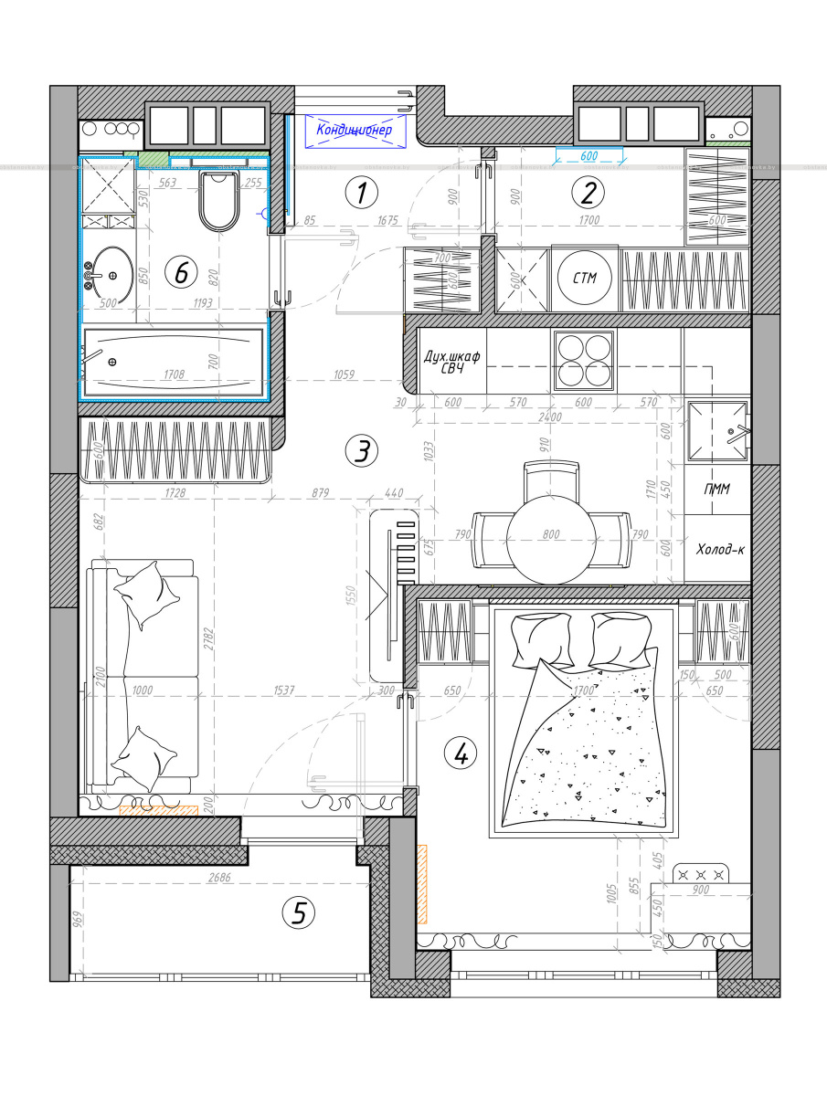
Самое важное тут было для заказчиков (молодая семейная пара) — уместить максимум по функциональным зонам в малое пространство (изначально 42 м²).
Тут мы скомпоновали холл, гардероб, санузел (+ скрытый личный туалет для кота со входом из холла), кухню, гостиную, спальню и лоджию.

Кухня. Керамогранит Italon
Современный интерьер с нотками арт-декошности и… квестом по поиску каштановых человечков.
Светлый, современный, лаконичный, фактурный, ритмичный, функциональный, вместительный, разделённый, прямолинейный и плавный, и с деревом, и чуть-чуть с золотишком — вот этими словами и можно охарактеризовать этот интерьер.