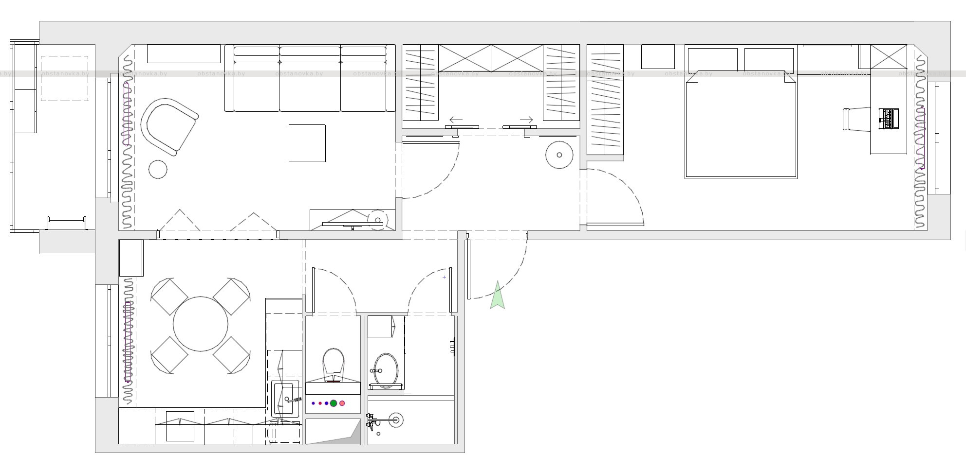
Интерьер квартиры в г. Минск, ЖК «Новая Боровая», площадью 62 м2, создан для супружеской пары средних лет, чьи дети давно выросли, и настал момент наслаждаться своей жизнью.
Эта квартира создавалась под вдохновением от любви к путешествиям самих заказчиков. Они много рассказывали о своём путешествии по Европе, по Франции и об особой атмосфере отеля, в котором останавливались. Ещё на этапе замеров, находясь в квартире, я сразу предложила внести это настроение в их интерьер.

Гостиная. Кресло Sandalyeci. Ковер Muscari
Квартира «Утро в Париже» получила своё название благодаря своему расположению: прекрасный мягкий свет утренних солнечных лучей встречает заказчиков в спальне — в момент, когда всё просыпается в этом мире.
И на протяжении дня солнце перемещается по всей квартире, провожая потом своих хозяев невероятным закатом под аромат вечернего чая на кухне.

Гостиная. Лампа настольная Aromas del Campo. Ковер Muscari
Эта квартира стала для них не просто уютным домом, но и местом силы. Местом, в котором собраны все элементы их воспоминаний: от яркого акцентного фартука на уютной кухне до изящных ножек у рабочего стола.

Спальня. Стул Sandalyeci
Проект создавался, опираясь на концепции, и многие решения принимались уже в процессе самого ремонта. Заказчики до конца не понимали, каким будет итоговый результат. Поэтому реализация, длившаяся 9 месяцев, вынашивалась бережно и с большой заботой.