Интерьер создавался для молодой пары.
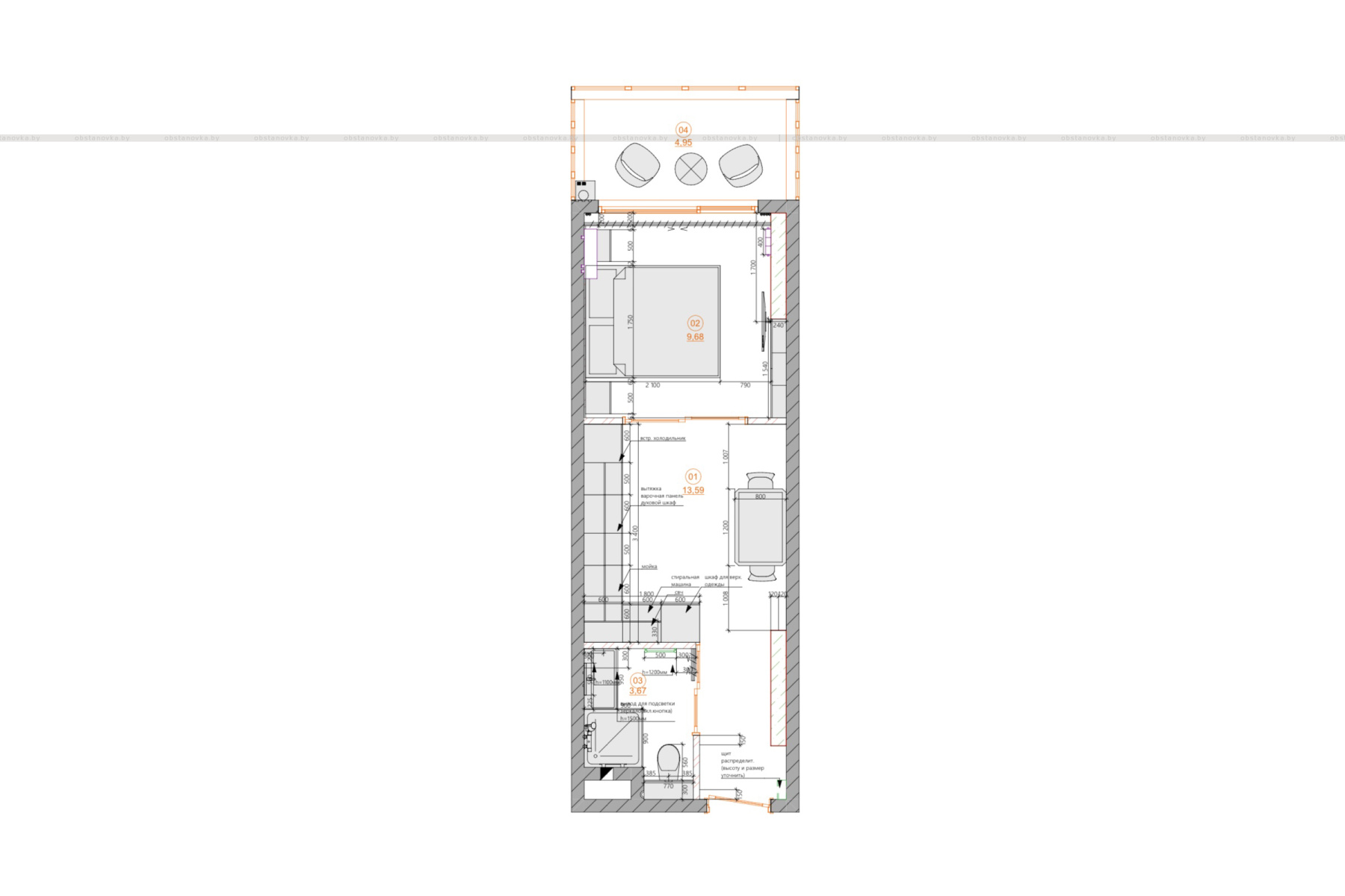
Им требовалось профессиональное зонирование квартиры для создания комфортных и раздельных функциональных зон. Основной задачей было выделить отдельно спальню в небольшой квартире.

Гостиная. Кухня Egger. Техника Bosch
Основная идея интерьера- функциональность, продуманное зонирование, эстетика. В данной квартире интересно пространство кухни-гостиной, в котором разместились три функциональные зоны: кухня, обеденная зона и прихожая.
Мебель кухни переходит в зону прихожей и играет роль главного акцента квартиры. Чувство простора создается за счет светлых материалов, текстуры мрамора и природного древесного декора, подобное цветовое сочетание наполняет помещение лаконичностью и объемом.

Кухня. Магнитные треки системы Arlight. Кухня Egger. Техника Bosch
Спальня воплощает идею лаконичного легкого пространства с осеней атмосферой, четкая геометрия, воздушные стеклянные перегородки алюминиевые рейки за изголовьем кровати, светильник с золотыми акцентами, эти элементы перемешиваются и перетекают из комнаты в комнату.

Спальня. Прикроватный столик Egger
Чтобы интерьер, в котором преобладают светлые, мягкие тона не выглядел монотонным, в проекте были добавлены контрастные цвета: зелёный, желтый, оранжевый и фактуры дерева и мрамора.

Это история о том, как при помощи цвета, деталей, текстуры камня и дерева в интерьере, можно превратить ремонт в картинку с обложки журнала.