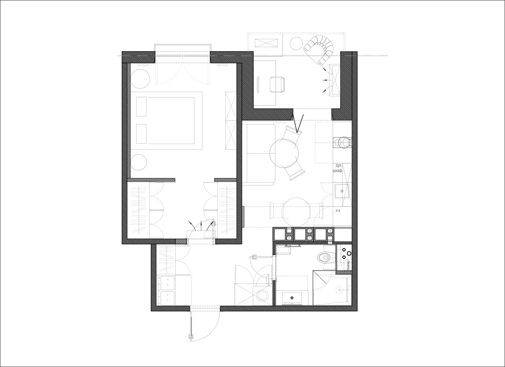
Объект расположен в Минске в панельном доме 2023 года постройки. Однокомнатная квартира площадью 48,9 м2.
Данный проект разрабатывался для холостяка. После семейной квартиры заказчик хотел обустроить лично для себя мужское жилище, отвечающее его потребностям и стилевым предпочтениям.

Гостиная. Ковер Carpet Decor. Пол наливной Remmers. Радиатор Zehnder. Диван MEXO. Свечи SIA. Bазы SIA. Плитка на фартуке WOW
Отправной точкой в разработке концепции будущего интерьера стала кухня из нержавеющей стали. С неё всё и началось. Фасады нижних кухонных шкафов и столешница выполнены из этого материала. Он же и задал брутальный и немного аскетичный стиль всей квартиры.

Кухня. Ковер Carpet Decor. Пол наливной Remmers. Бокалы SIA. Плитка на фартуке WOW
Поддержать аскетичный дух интерьера удалось с помощью эпоксидного наливного пола под бетон в зоне прихожей и кухни и бетонными потолками во всех помещениях.
Такие решения очень неприхотливы в уборке и практичны в эксплуатации, что очень кстати для мужской квартиры.

Прихожая. Пол наливной Remmers
Добавить уюта помогло обилие натурального дерева и текстиля.
Весь интерьер наполнен натуральными материалами: дерево, металл, стекло, бетон, лён, шерсть. Все фактуры тактильно приятные.

Гостиная. Ковер Carpet Decor. Пол наливной Remmers. Диван MEXO. Свечи SIA. Bазы SIA. Стулья обеденные EMU. Светильник подвесной Maytoni
Отделка санузла отображает в себе основные идеи и материалы всего интерьера. Но также имеет свою особенность, которая объединяет весь интерьер квартиры. Речь идёт о керамограните на стенах и полу, который словно разбит на куски и склеен серебряным клеем.

Спальня. Столик Tomasella. Кровать MEXO. Bазы SIA
Эта коллекция итальянского керамогранита посвящена кинцуги. Японская философия кинцуги (яп. — «золотая заплатка») — японское искусство реставрации керамических изделий с помощью лака, полученного из сока лакового дерева (уруси), смешанного с золотым, серебряным или платиновым порошком.

Санузел. Плитка WOW. Сантехника Jacob Delafon. Сантехника Kerasan
Философская основа искусства кинцуги заключается прежде всего в том, что поломки и трещины неотъемлемы от истории объекта и поэтому не заслуживают забвения и маскировки. Именно эта философия пронизывает весь интерьер квартиры. Каждая трещинка прекрасна, каждый дефект на натуральном материале отображает следы жизни. По этим следам можно увидеть всю историю.