Проект «A FUN FARM» — концептуальный проект с элементами мужского юмора.
Компания находится в одном из бизнес-центров г. Минска и занимается поставкой высокотехнологичного автоматизированного оборудования для молочно-товарных ферм.
Концепция
Концепция данного проекта появилась очень быстро. За основу мы взяли главную героиню фермы — корову. Так появились основные цвета: чёрный и белый.

Входная группа. Кресла и стулья Tomasella
Синий цвет в проекте появился не случайно — это фирменный цвет компании. Директору компании хотелось создать для себя, своих коллег и сотрудников лаконичное и строгое пространство.
Ну а мы, в свою очередь, после общения с заказчиком, добавили щепотку юмора в виде потрясающих тематических картин, придав тем самым данному пространству шарм и индивидуальность.
Проект был разработан в сжатые сроки, а реализация заняла 1,5 месяца.

Рабочее место директора. Стулья Tomasella. Стул Calligaris. Ковер Carpet Decor
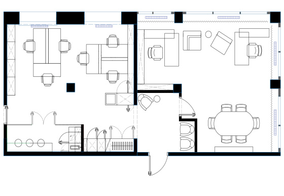
Планировочное решение
С учётом пожеланий заказчика нам необходимо было предусмотреть:
- входную группу и зону ожидания для посетителей;
- кабинет для двух директоров с размещением переговорной зоны;
- кабинет для менеджеров;
- кухню

Входная группа. Кресло Tomasella
Первое, что мы видим, зайдя в офис, — световую чёрно-белую многослойную композицию с логотипом компании. И здесь опять мы вдохновлялись коровой, глядя на которую можно сказать: ни одного одинакового контура из чёрно-белых пятен.
Также во входной зоне расположены комфортные кресла для посетителей.
Рабочее пространство
Нам достались два смежных помещения. Одно из них — с большими панорамными окнами и потрясающими закатами. В данном пространстве расположен кабинет двух директоров и переговорная зона.
Здесь мы создали не только рабочую обстановку, но и место для неформального общения, разместив ковёр, два комфортных объёмных дивана и столики.

Зона неформального общения. Ковер Carpet Decor. Светильник Tomasella
В «серьёзную» зону для переговоров добавили немного юмора в виде картины О. Жебиной. Данная картина хорошо вписалась в интерьер не только композиционно, но и прекрасно поддержала концепцию проекта.
В смежном помещении находится рабочая зона менеджеров. Из пожеланий заказчика — минимальный набор мебели, необходимый для комфортной работы. Цвет стен и мебели поддерживает общую концепцию.

Кабинет для менеджеров. Стул Calligaris
Несмотря на то, что площадь офиса небольшая, нам удалось предусмотреть вместительный шкаф, в котором расположены серверная, хранение для верхней одежды и место для бытовых принадлежностей.
Что касается кухни — несмотря на компактную площадь, здесь есть всё необходимое для приёма пищи. При этом в помещении может находиться несколько сотрудников одновременно. Чтобы визуально добавить объёма, одна из стен выполнена из стекла. Внутри кухни стены выкрашены в синий цвет, а потолок — в чёрный.

Создав идеальную чёрно-бело-синюю базу, мы аккуратно добавили тематические картины. Именно благодаря этому симбиозу пространство получилось уютным, спокойным, в то же время амбициозным, смелым и характерным.