Разработали и реализовали проект интерьера офиса для руководителей компании «Александров».
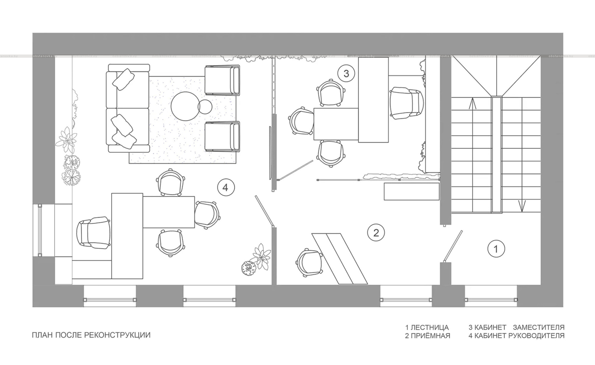
На небольшой площади в 50 м2 организовали ресепшен, кабинеты директора и помощника. Рабочее пространство каждого из кабинетов оборудовано удобными столами с дополнительной переговорной частью и стеллажами, выполненными по индивидуальным авторским эскизам.

Ресепшен. Корпусная мебель Domani. Стеновые панели Domani
Пол и стены облицованы крупноформатными плитами из керамогранита и панелями в отделке из шпона дуба. Участок стены между кабинетами выполнен из стеклоблоков, к которым примыкают зелёные панно.
Помещения офиса украшает живопись Дениса Синявского.
В кабинете директора также нашлось место для размещения кожаного дивана и двух кресел.

Кабинет директора. Корпусная мебель Domani. Стеновые панели Domani. Столики между диваном и креслами Calligaris. Диван furman. Вазы керамические Лиза Пулко. Живопись Денис Синявский
Кабинет помощника отделён от зоны ресепшен стеклянной перегородкой, сквозь которую в него проникает естественный свет.