IT-офис постковидной эры: код — эффективность, материал — честность.
Наш проект — это ответ на новые вызовы: как создать безопасное, гибкое и вдохновляющее пространство без превышения бюджета?
Ключевые принципы решения:
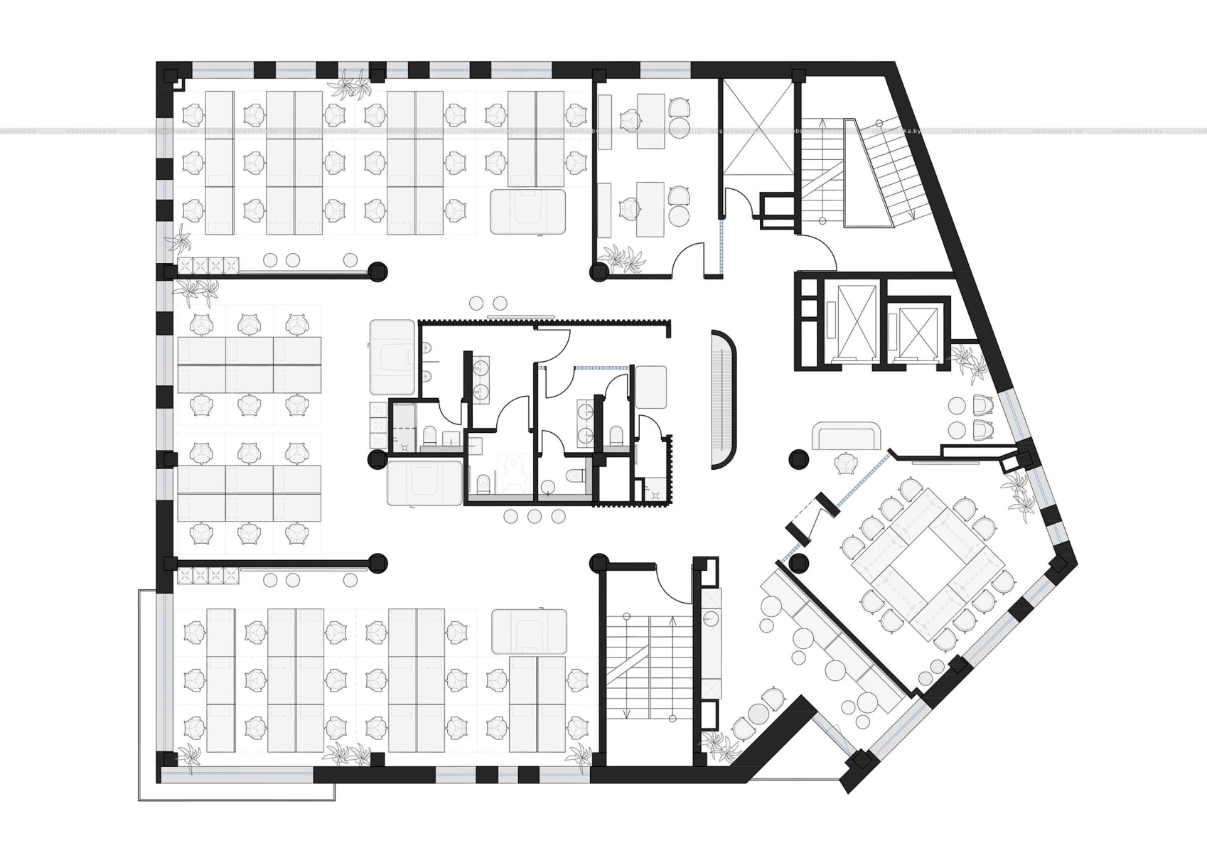
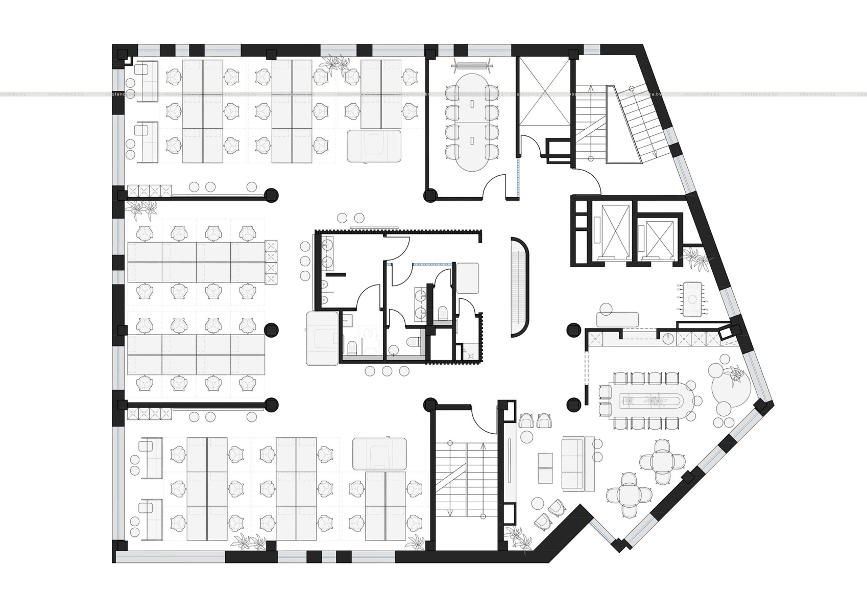
Функциональное зонирование: Рабочие места и переговорные комнаты вынесены на периметр здания, обеспечивая доступ к естественному свету. Центральное ядро вмещает санузлы, гардеробные, с ними связана открытая кухня-столовая, что минимизирует транзитные потоки и создаёт естественный центр притяжения.

Welcome зона. Рецепция Narbutas. Кресло Narbutas
Экономичная и художественная эстетика: В условиях ограниченного бюджета и сроков была принята концепция «честных материалов». Натуральная фактура становится главным декором: кирпичная кладка с художественным чередованием ложковых и тычковых рядов формирует акцентные перегородки, а светопрозрачные стеклоблоки обеспечивают звукоизоляцию и наглядную иллюстрацию принципа «формообразования через материал».

Гибкость и гибридный формат работы: Внедрена система hot-desking с использованием локеров для деперсонализации рабочих мест.
Пространство оборудовано современными рабочими станциями с кабель-менеджментом, акустическими кабинами для сосредоточенной работы и звонков, а также многочисленными маркерными досками для импровизированных обсуждений.

Рабочее пространство. Рабочий Narbutas. Кресло Narbutas. Акустическая кабина Narbutas. Ковровая плитка Forbo
Комфорт и безопасность: Напольные покрытия подобраны по функциональному принципу: износостойкий микроцемент в зонах высокой проходимости и «мокрых» зонах, акустическая ковровая плитка — в рабочих зонах.
В санузлах реализована полностью бесконтактная система использования.

Архитектоника и искусство: Пластическое решение строится на контрасте прямых линий и мягких форм арок и кругов, что создаёт динамичный и гармоничный ритм. Индивидуальность пространству придают site-specific арт-объекты современного художника. Сдержанная палитра, организованная по принципу color blocks, подчёркивает объёмы и зонирование.

Лаунж зона в столовой. Диван Narbutas. Столик Narbutas
Вывод: Проект предлагает рентабельное и концептуальное решение, где архитектурная честность, функциональность и современный арт подчинены главной цели — созданию среды для продуктивной работы, wellbeing сотрудников и укрепления корпоративной культуры.