Впервые за всю карьеру мы занимались ритейлом — очередная типология в копилочку. Мы занимались всем: от квартир до производственных пространств. Теперь в этом спектре у нас есть и магазин.
Crispy — это магазин сладостей, энергетиков и разных корейских продуктов.
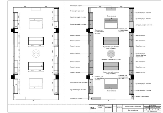
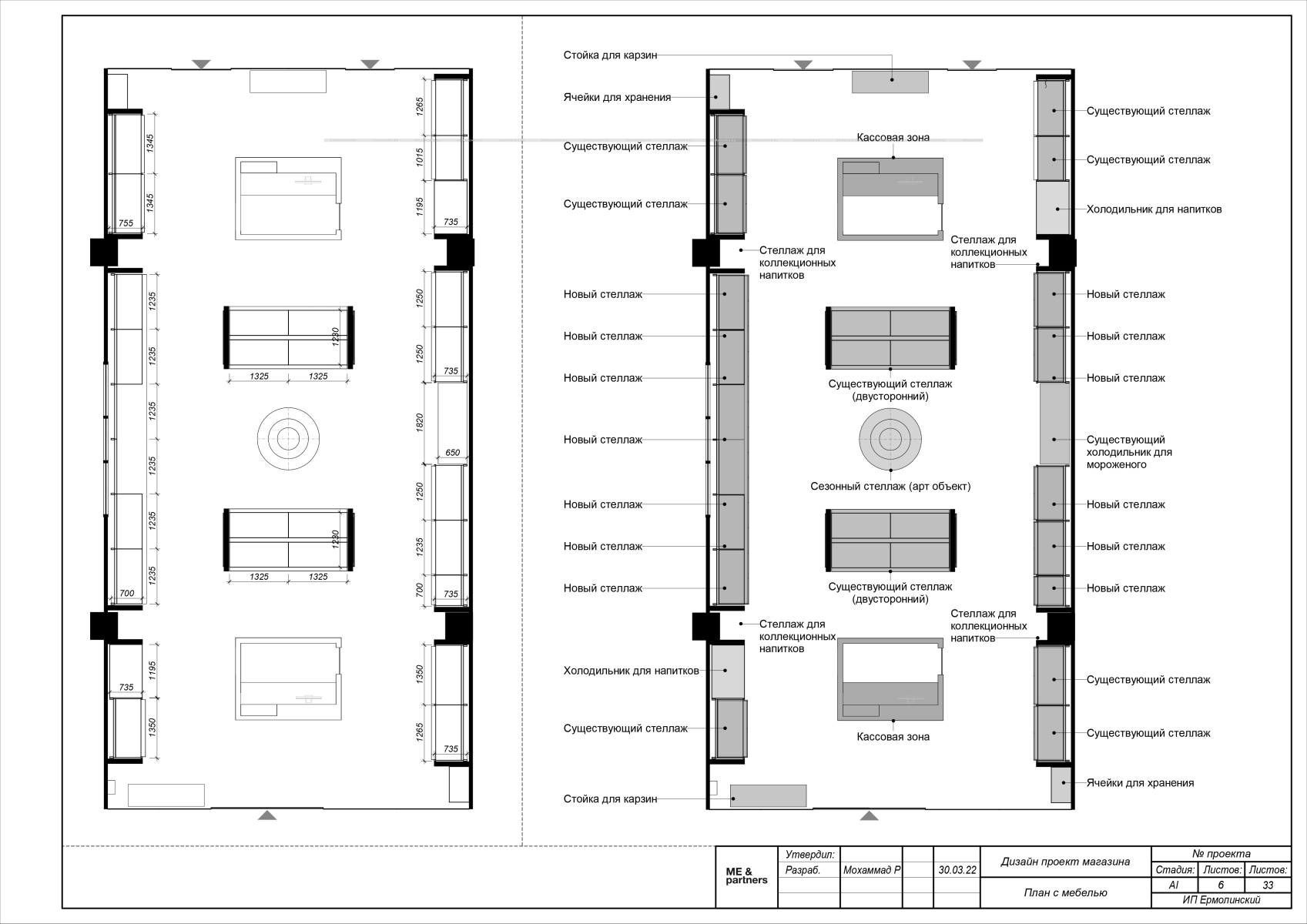
Исключительно фотогеничный образ сформирован за счёт дискретной планировки.

Дробная и прерывистая, но симметричная и беступиковая структура помещения формирует визуальные оси, в конце которых всегда есть акцентные элементы — зеркала, навигационные лайтбоксы с RGB-подсветкой, кассовая зона с элементами айдентики.

Чёткая и масштабируемая структура навигации позволит в будущем повторять узнаваемый образ магазина и в других локациях. Цветовые решения, отделочные материалы, напольные покрытия также могут применяться и на других объектах.
При всём вышесказанном, в этой концепции есть и свобода творческого самовыражения. Отдельные элементы имеют свои индивидуальные особенности.

Кассовая зона — островная. В её фронтальную грань интегрирован объёмный логотип за матовым стеклом со сплошным контровым светом. В зале есть несколько стеллажей, которые несут декоративную функцию: в одном собирается коллекция редких энергетиков, в двух других засыпаны банки из-под газировки, и в последнем собираются подарочные боксы.
Магазин со своей харизмой и стилем!