С этим интерьером я начала работать восемь лет назад. За это время бренд вырос, эволюционировал, и назрело желание выразить это в новых визуальных решениях в интерьере.
Обновлённая версия интерьера подчёркивает философию бренда — сочетание чистоты, уверенности и внутренней гармонии. Здесь дизайн не отвлекает, а помогает прожить эмоцию: от первого взгляда на платье до момента, когда оно становится частью личной истории невесты.

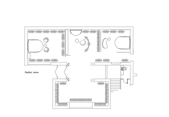
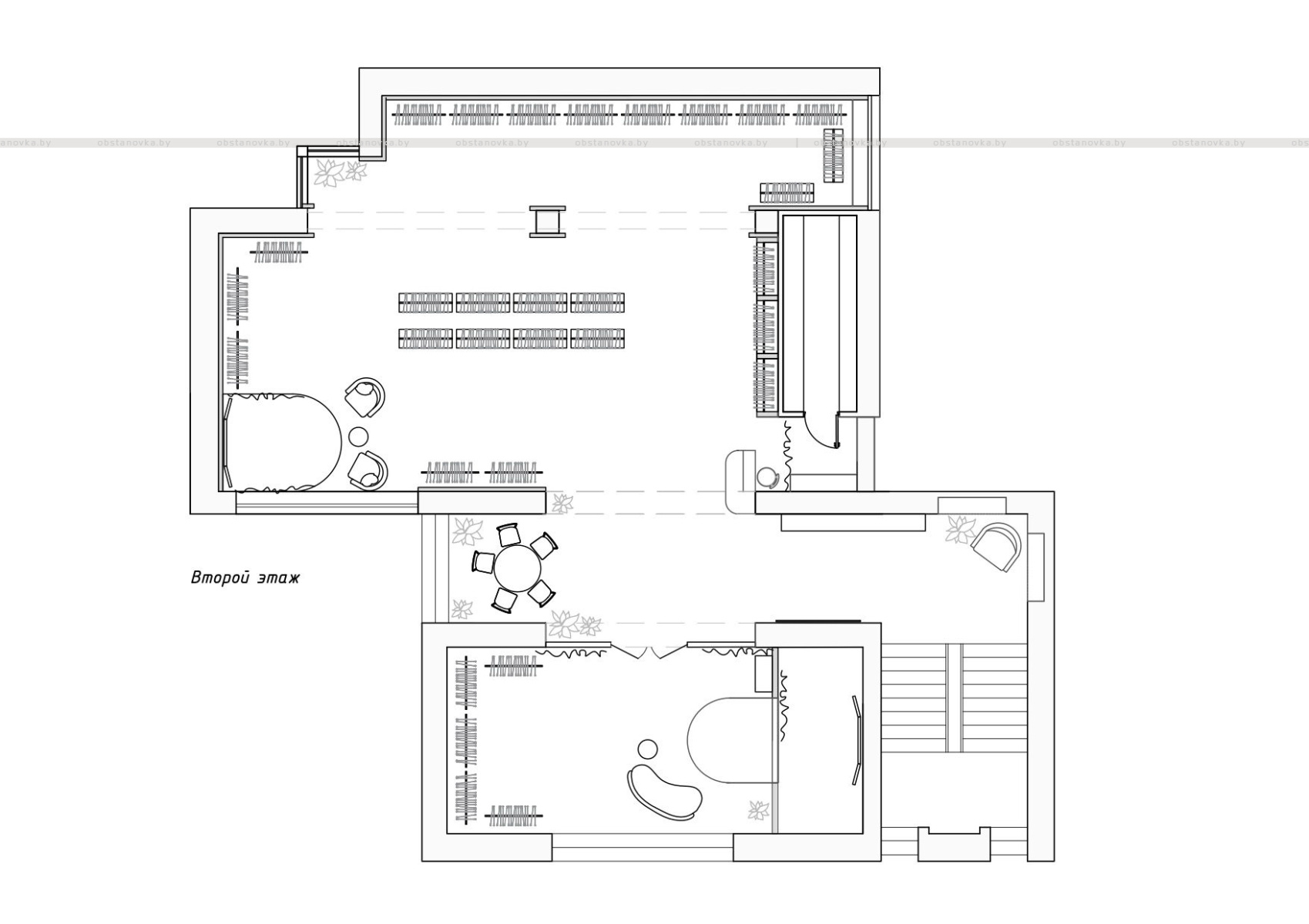
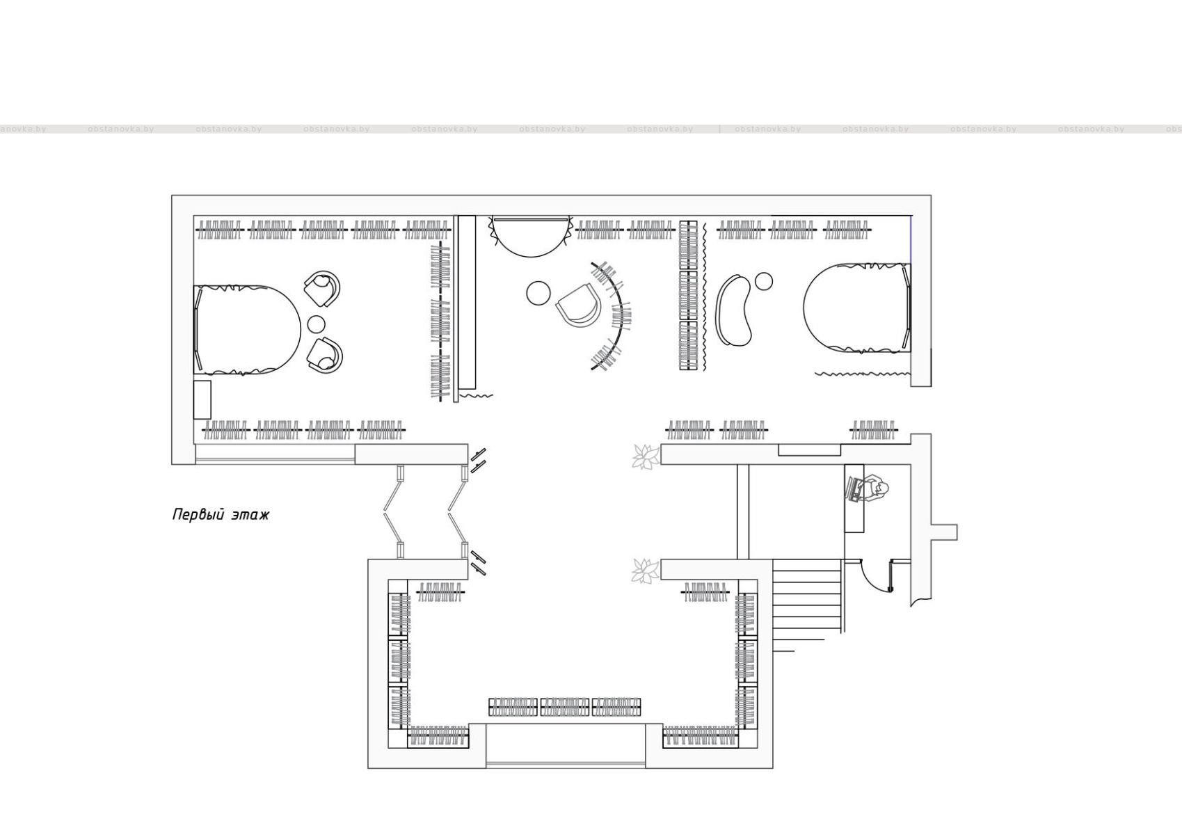
После ремонта пространство получило новую структуру и звучание, сохранив при этом свою атмосферу.
Задача проекта — не просто оформить интерьер, а выстроить эмоциональный сценарий взаимодействия: от первого шага в салон до финального взгляда в зеркало. Пространство работает на ощущение праздника и удовольствие от выбора, превращая процесс покупки платья в событие.

Основой концепции стало сочетание нежности и архитектурной выразительности: мягкие формы мебели и светлая палитра контрастируют с брутальной фактурой потолка, который мы оставили открытым в одном из помещений, и графикой металлических перегородок.
В интерьере доминируют свет, пластика арочных форм и фактура натуральных материалов — всё, чтобы подчеркнуть лёгкость и утончённость свадебных образов, создавая атмосферу, в которой каждая деталь подчёркивает ценность момента выбора платья.

В зоне экспозиции акцент сделан на чистоте линий и мягких изгибах арочных конструкций, поддерживающих эстетику женственности. Светлые стены и воздух между предметами позволяют платьям «дышать» и раскрывать фактуру тканей при естественном освещении.
Примерочные зоны спроектированы как камерное, комфортное пространство для важного личного момента. Мягкие текстуры, свет и плавные формы мебели создают ощущение уюта и доверия. Центр композиции — подиум, где клиентка видит себя в отражениях нескольких зеркал, словно в кадре кинематографичной сцены.

Отдельного внимания заслуживает пол: ещё на этапе первых демонтажных работ восемь лет назад я обнаружила под плиткой каменный оригинальный пол — «брекчия» — и настояла на том, чтобы его вызволили и оставили в проекте. Его сложная мозаичная фактура добавляет интерьеру землистый контраст и ощущение устойчивости, балансируя воздушность верхних планов.
Благодаря этому решению интерьер приобретает архитектурную глубину, а пространство становится визуально многослойным.

Этот проект — не просто оформление салона, а продуманная система эмоций, где каждая деталь работает на цельный образ бренда и создаёт ощущение праздника, которое начинается задолго до самого торжества.