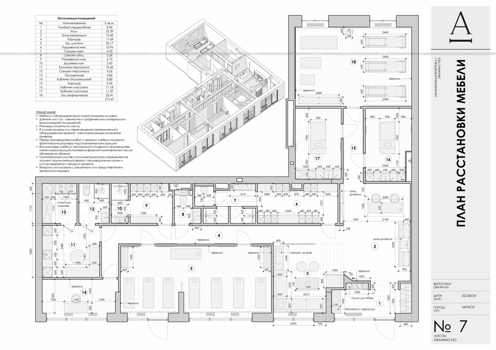
Saans — это не просто ретрит-студия в центре Минска, а пространство, которое воплотило в себе запрос на глубокое восстановление в ритме бурного города.
Основательница студии, Анна, создавала это место как убежище для тех, кто ищет гармонию в ежедневной суете. Здесь каждое мгновение отдается заботе о теле и душе.

Интерьер Saans — это продуманный микс текстур и материалов, которые вызывают приятные ощущения при каждом прикосновении. Пространство наполнено мягким светом, создающим уединённую атмосферу, в которой легко забыть о внешнем мире. Весь дизайн выдержан в спокойной, нейтральной цветовой гамме, где нет ярких акцентов, а каждое пространство воспринимается как продолжение спокойного потока времени. Здесь царит тишина, охватывающая каждую деталь.

Зал реформеров, с его минималистичной и уютной атмосферой, даёт возможность сосредоточиться на теле и дыхании.
Природные материалы — от натурального дерева до камня — добавляют тепла и уюта, делая занятия ещё более гармоничными.

Зал йоги — пространство, в котором царит ощущение лёгкости и свободы. На полу — гладкий паркет, создающий мягкость и тепло под ногами.
Стены украшены панелями с натянутыми нитями, которые придают залу особую текстуру и визуальную лёгкость, усиливая атмосферу спокойствия и сосредоточенности.

Общая зона оформлена уютным ковролином, который делает пространство ещё более тёплым и домашним. Этот элемент наполняет помещение мягкостью и комфортом, создавая атмосферу уюта, где каждый человек может расслабиться и почувствовать себя как дома.
Массажные кабинеты — интимные уголки, оформленные с заботой о каждой детали. Здесь используются исключительно натуральные материалы, а мягкое освещение помогает расслабиться и настроиться на восстановление.

Чайный дом — особенное место в Saans. Здесь, у мягкого дивана и чайной станции, можно не просто насладиться чашечкой чая, но и войти в пространство полного покоя и умиротворения. Вода для чая подаётся в отдельной зоне, где её поток ниспадает прямо в каменную раковину, вырезанную вручную. Этот элемент природы напоминает о гармонии, где каждый момент имеет значение.

Тишина, тактильность и дыхание — три основополагающих элемента, которые объединяют каждую деталь Saans. Здесь нет случайных решений: каждый элемент интерьера — от текстиля до камня — работает на создание пространства, где каждый может вернуться к себе и найти баланс.