Мы хотели создать не просто школу, а пространство для детей, которое наделено смыслами и вдохновляет.
Ставили задачу спроектировать такую школу, которая мотивирует детей к творческой деятельности и помогает раскрыть таланты.

Школа встречает учеников мотивационной фразой «РАСКРОЙ СВОИ ТАЛАНТЫ». Дальше, перемещаясь по школе в различных зонах, ребенок встречает фразы, которые порождают мысли о том, каким же талантом он наделен.
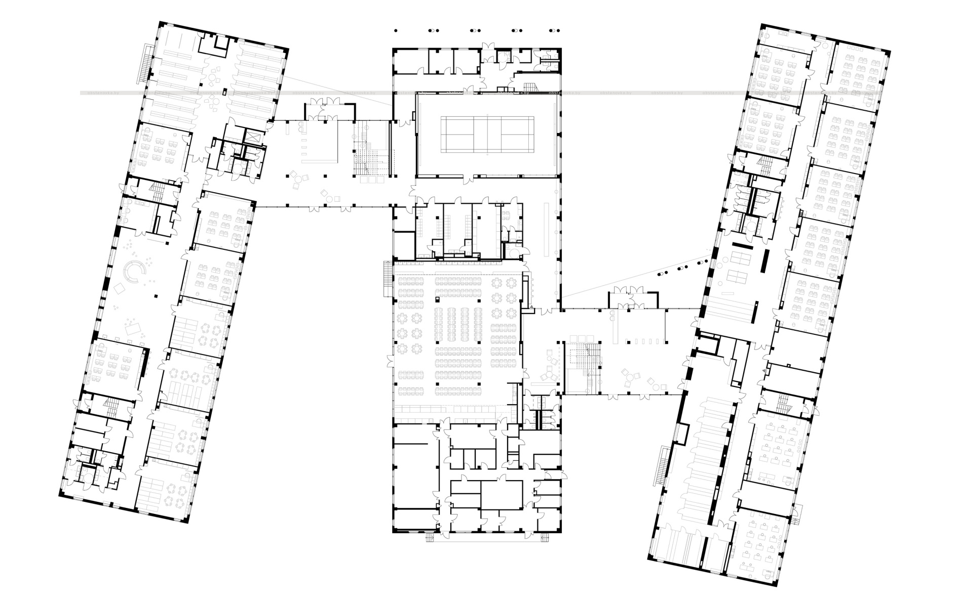
Школа талантов состоит из трех корпусов: младший для учеников начальной школы (1-4 классы), старший для учеников (5-11 классы) и центральный, включающий в себя общие пространства, такие как актовый зал, столовую и спортивные залы.

Эти корпуса связывают светлые стеклянные переходы. Центральную лестницу удалось превратить в яркий арт-объект. Лестницы дополнены амфитеатрами, на которых так классно общаться с друзьями.
Рекреации младшего корпуса
Хотели создать школу, в которой не только интересно учиться, но и проводить свободное время и перемены. В пространстве школы есть рекреации, каждая из которых посвящена отдельной тематике, отдельному ТАЛАНТУ. Проводя время в данном пространстве, ты понимаешь, что же ближе именно тебе!
Интерьер школы не просто современный, он помогает ребенку найти себя, раскрыть свои ТАЛАНТЫ, погружает в разные тематики, постоянно общаясь с учеником, и всегда оставляет место для творчества и креатива!

На каждом этаже младшего корпуса есть рекреация — место для отдыха.
На самом первом этаже — пространство для самых маленьких, чтобы переход в школу был более мягким. На втором этаже — арт-пространство, на третьем — музыкальное. Здесь можно попробовать себя в роли музыканта или проверить свои творческие способности.

Краска Caparol
Рекреации старшего корпуса
Для старшего корпуса мы придумали свои темы для рекреаций: это спорт, космос, выставка, тик-ток зона.
В зоне спорта можно сыграть в настольный теннис на перемене с другом, а лучшие достижения в спорте среди учеников можно зафиксировать на доске достижений. Может, ты теннисист?

Зона космоса разместилась на одном этаже с лабораториями химии и биологии и другими тематическими кабинетами. Вдруг среди нас будущий космонавт?
Рекреация выставка служит пространством для демонстрации достижений в изобразительном искусстве.
Тик-ток зона с циклорамой для съемки самых популярных сторис и рилсов или, может, даже для целого подкаста.

Библиотека
Пространство библиотеки получилось сделать достаточно необычным. Во-первых, мы выделили отдельную тихую зону за перегородкой отдельно от основного открытого зала, где можно уединиться для чтения или провести урок в необычной атмосфере.
Во-вторых, стилистически мы использовали дюхроическую пленку для стекла. Это решение добавляет особой творческой атмосферы. Эту перегородку видно даже с улицы; проходя мимо, она уже формирует интерес к данному пространству.

Актовый зал, столовая, спортивный зал
Кроме основных пространств мы смогли наполнить школу интересными пространствами. Возле актового зала мы разместили балетную рекреацию. Такие зоны очень классно работают, дают возможность мыслить ученикам и учителям шире, проводить уроки вне класса. Может, кого-то именно тут зародится мысль связать свою жизнь с балетом.

Вот такая Школа талантов у нас получилась!