Проект начался не с чертежей, а с консультации. Заказчик обратился ко мне с просьбой помочь определиться с выбором помещения для будущей стоматологической клиники.
У него уже был на примете вариант, но не было уверенности, что он подойдёт для реализации всех требований.
Мы провели детальный анализ: отдельный вентиляционный канал и возможность подключения оборудования через подвал оказались весомыми плюсами.

Полы Italon. Стены Italon. Мебель Italon. Керамогранит Italon. Стены Oikos. Потолок Oikos
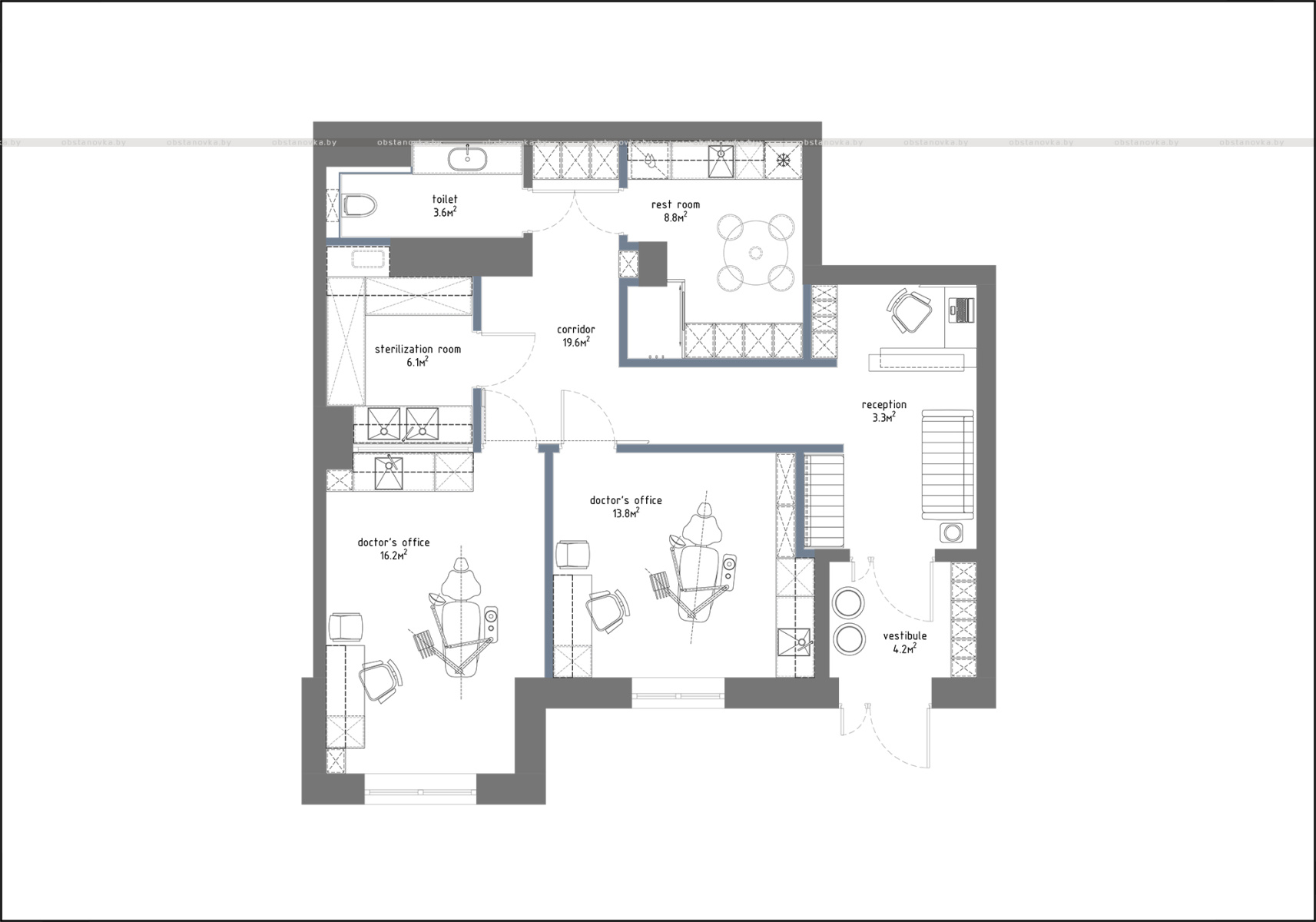
Я разработал предварительное планировочное решение, которое доказало, что на 75 м2 можно разместить всё необходимое, соблюдая нормы и обеспечивая комфорт. Это стало решающим моментом: заказчик утвердил помещение, и мы приступили к полноценному проектированию и реализации.
Первое, что видит посетитель, — небольшой тамбур, где можно снять верхнюю одежду и надеть бахилы, не торопясь, сидя на мягком пуфе. Далее пространство раскрывается: зона ожидания с удобными диванами, зарядками для гаджетов и кулером с водой. Здесь же — компактный ресепшен, за которым скрыта рабочая зона администратора и места для хранения.

В центре планировки — два полноценных стоматологических кабинета, каждый с площадью больше нормативной, с продуманным размещением оборудования.
Кабинет стерилизации я отделил частично остеклённой перегородкой, чтобы обеспечить его естественное освещение.

Приватная часть клиники — санузел и комната отдыха для персонала. Здесь мы разместили кухню, обеденный стол, зоны хранения и переодевания с раздвижной перегородкой.
В интерьере я сознательно ушёл от холодной стерильности, привычной для медицинских пространств. Мне хотелось, чтобы люди чувствовали себя здесь спокойно и уверенно. В отделке использовал текстуры дерева, керамогранит под камень, декоративную штукатурку.

Акцентами стали:
- ресепшен с отделкой под камень и фоном из дерева;
- высокие двери кабинетов из глубоко тонированного стекла;
- тёплая подсветка, мягко отделяющая приватные зоны в тёмной палитре.
Я изначально закладывал в этот проект не только функциональность, но и определённую эмоциональную миссию. Стоматология — место, куда многие приходят с тревогой, а иногда и страхом. Моей задачей было сделать так, чтобы с порога эти ощущения уходили.

Я создавал пространство, которое воспринимается как тёплое, доброе и заботливое. Здесь нет ощущения медицинской холодности — напротив, интерьер отдаёт теплом дома, где о тебе позаботятся.
Натуральные материалы, мягкий свет, тёплая цветовая гамма — всё это работает на то, чтобы человек расслабился и почувствовал себя в безопасности, несмотря на то, что это клиника, причём стоматологическая.

Полы Italon. Стены Italon. Мебель Italon. Керамогранит Italon. Стены Oikos. Потолок Oikos
Этот интерьер стоматологической клиники разрушает стереотип о медицинских пространствах как о холодных и безличных.
Здесь соблюдены все нормативные требования, но при этом создана тёплая, дружелюбная атмосфера, которая помогает пациентам преодолеть страх перед стоматологическим лечением.

Сантехника Paffoni. Полы Italon. Стены Italon. Мебель Italon. Керамогранит Italon. Потолок Oikos
Проект показывает, что даже на компактной площади можно создать функциональное, эстетичное и психологически комфортное пространство. Это клиника, в которой забота о человеке начинается с первых секунд — с момента, когда он открывает дверь.