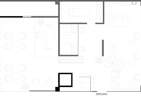
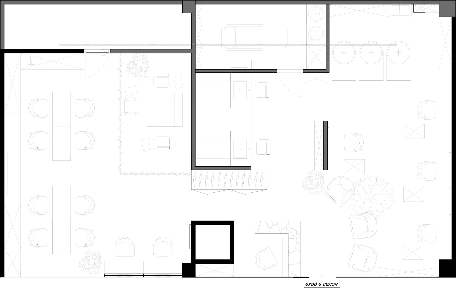
Салон красоты оформлен с акцентом на использование природных материалов и грамотное распределение пространства.
Основной элемент дизайна — стеклянная стена-витрина, которая привлекает внимание проходящих мимо посетителей торгового центра и как бы приглашает войти, создавая открытость и доступность.

Интерьер включает два зала, оформленных в светлых тонах с использованием натурального камня и дерева. Эти материалы создают атмосферу уюта и естественности. Мебель выполнена в минималистичном стиле, что подчёркивает элегантность и современность пространства.
Первый зал предназначен для ожидания и консультаций, с удобными креслами и журнальным столиком.

Второй зал оборудован рабочими местами для мастеров, с удобными креслами и хорошо освещёнными зеркалами.
Освещение зала тщательно продумано: мягкий свет создаёт комфортную атмосферу, а стильные светильники добавляют изысканности.

Организация пространства учитывает функциональность и комфорт клиентов. Просторные проходы и эргономичное расположение мебели обеспечивают удобство перемещения внутри салона.
Стеклянная стена позволяет свету проникать внутрь, создавая ощущение простора и свежести.

Таким образом, салон сочетает в себе природные элементы и современный дизайн, создавая уникальное пространство, которое притягивает клиентов своим уютом и стильностью.