Работая над проектом Мостовской районной библиотеки, моей задачей было создать современное культурное пространство, сохранив уважение к истории учреждения, основанного в 1940 году, и его значению для города.
Библиотека — это не просто место хранения книг, а общественный центр притяжения. Поэтому в основе концепции лежала идея открытого, светлого и функционального пространства, где комфортно читателям разных возрастов — от детей до старшего поколения.

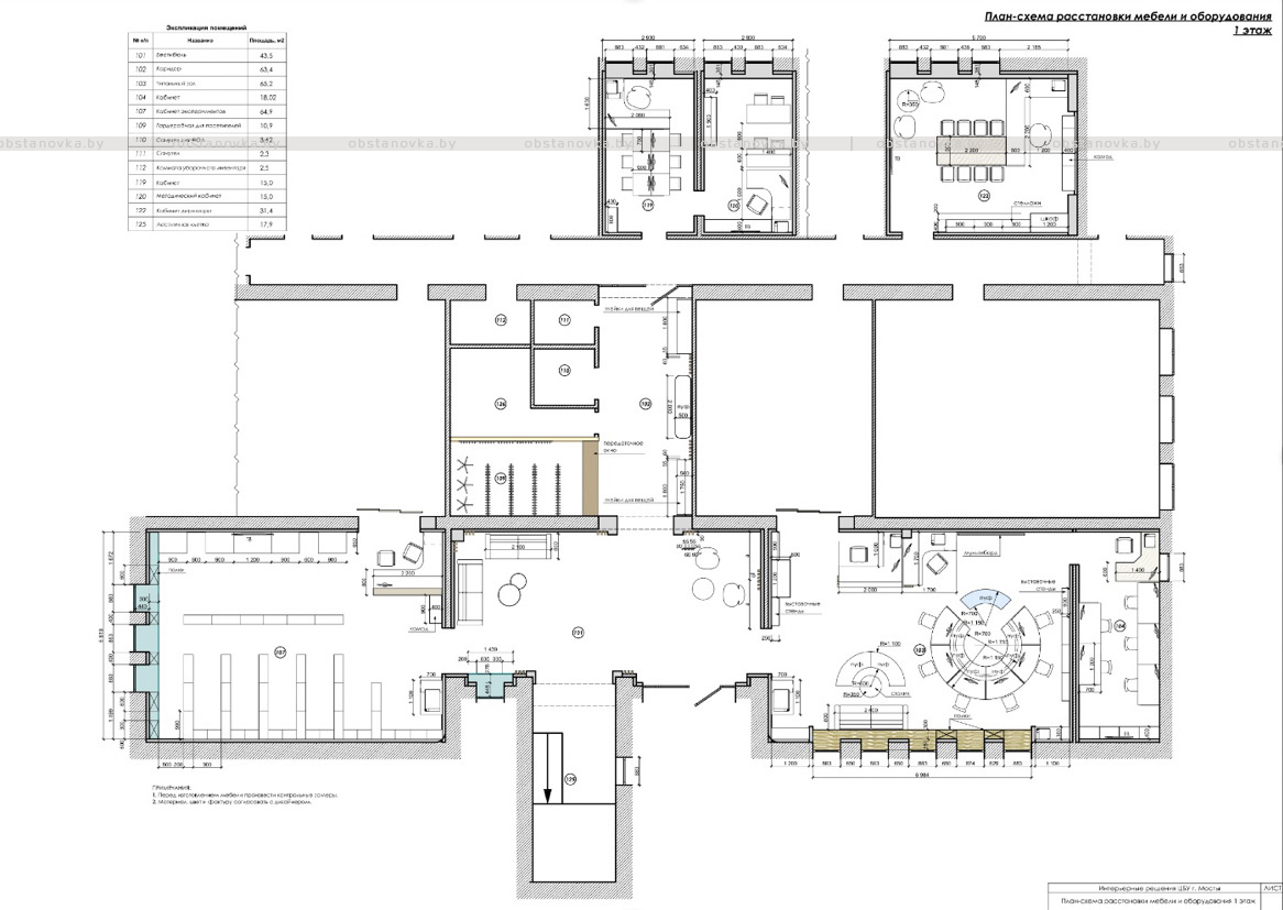
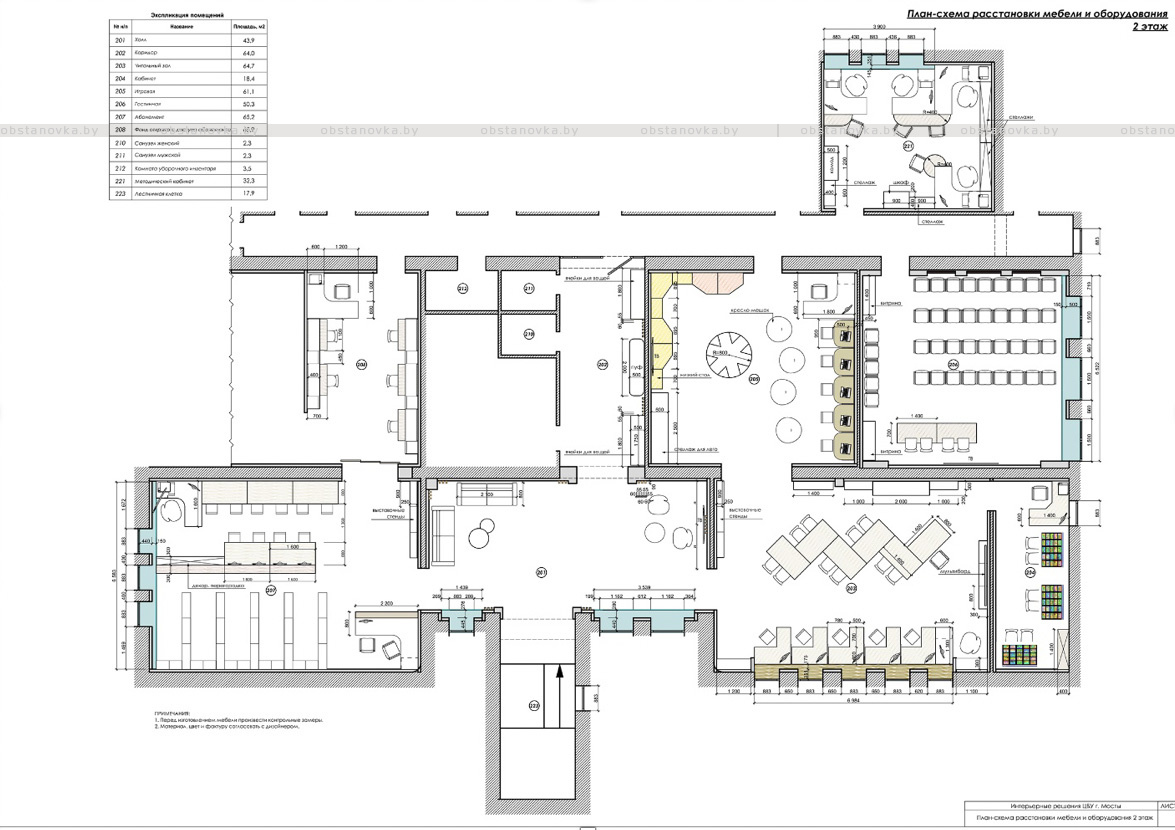
Было важно грамотно зонировать пространство:
- зона тихого чтения
- пространство для мероприятий и встреч
- детская зона
- информационные и выставочные пространства
Главный акцент сделан на обновлении восприятия библиотеки как актуального и живого пространства. Интерьер построен на сочетании спокойной базовой палитры с тёплыми акцентами, которые создают уютную атмосферу и располагают к чтению и общению.

После обновления библиотека приобрела современный характер, сохранив свою культурную миссию. Пространство стало более открытым, функциональным и привлекательным для жителей города, а также площадкой для образовательных и общественных мероприятий.