Проект студии текстиля построен вокруг идеи изменить привычный подход к организации шоурума текстиля — отказаться от перегруженной экспозиции.
Пространство выстроено как рабочая среда для взаимодействия дизайнера и клиента с акцентом на восприятие материала, его фактуры и цвета.
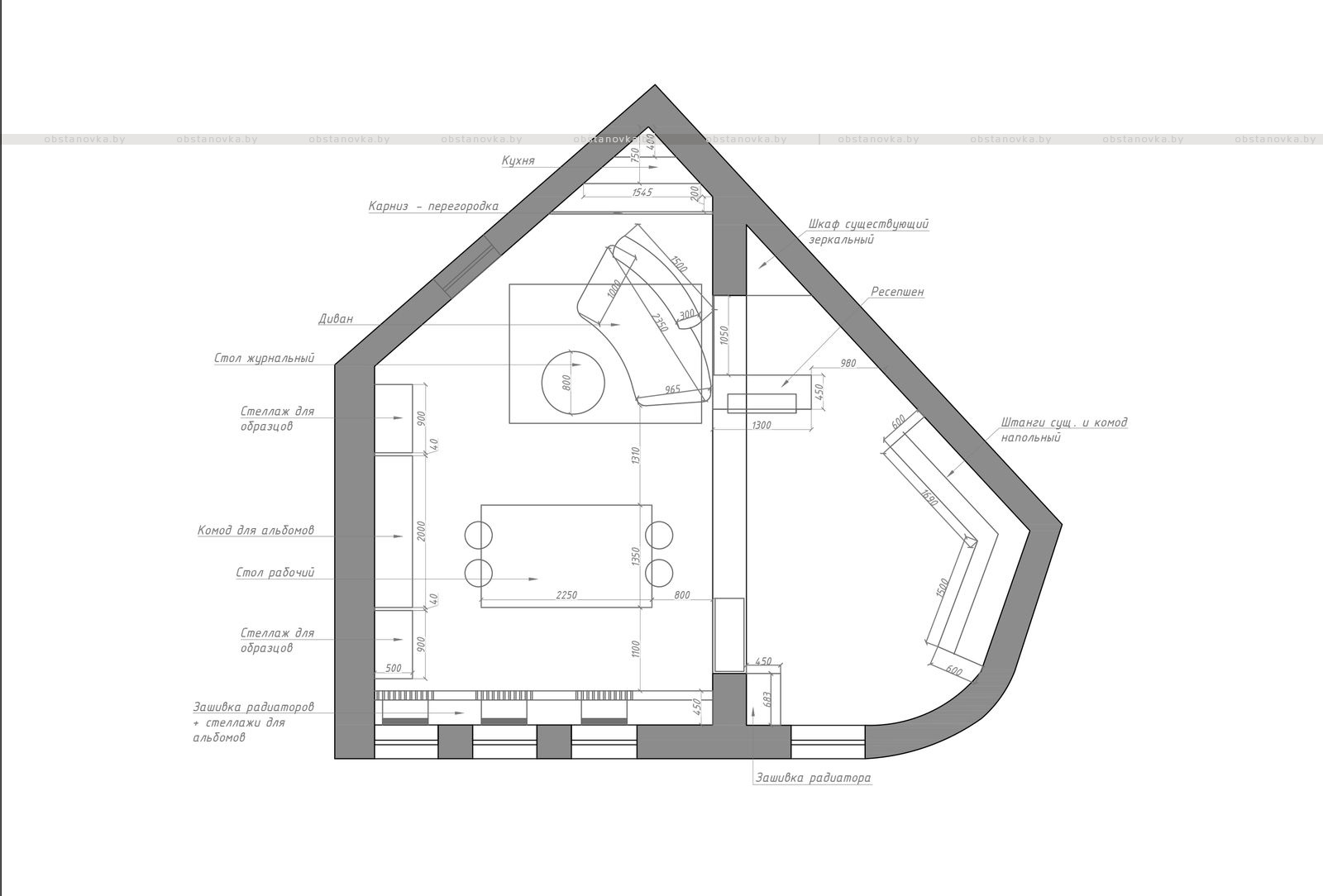
Планировочное решение, заданное несущей балкой, позволило разделить салон на два помещения с разным характером. Первая зона выполнена в нейтральной светлой гамме и предназначена для работы с цветом и фактурой тканей без визуальных искажений.

Керамическая плитка Mainzu. Ковер Carpet Decor
Вторая часть пространства решена более контрастно и атмосферно, где текстиль становится частью интерьерной композиции.
Интерьер намеренно лишён сложных декоративных и конструктивных приёмов: выразительность пространства формируется за счёт текстиля, его фактуры, цвета и объёма. Текстиль в проекте работает на нескольких уровнях — как средство зонирования, элемент отделки и часть предметной среды, формируя цельный и выразительный интерьер.

Краска настенная Loymina. Ковры Carpet Decor
Цветовая палитра построена на контрасте светлых стен с бордовыми и графитовыми оттенками. В отделке и мебели использованы натуральные материалы, в частности шпон, что поддерживает тактильность пространства и подчёркивает характер интерьера.